Verkocht:Zaaier 152, 3833 VW Leusden - Foto
Verkocht
+22

Zaaier 152 3833 VW Leusden

  • Appartement
  • 2 kamers
  • 1 slaapkamer(s)
  • Bouwjaar 1985
  • 57 m² gebruiksoppervlakte
  • D Energielabel D

Beschrijving

Hartje centrum, comfortabel en gelijkvloers !

Dit 2-kamer appartement met een woonoppervlak van 57 m2 ligt op loopafstand van winkelcentrum De Hamershof. Deze woning is niet alleen royaal, maar beschikt ook over een separate berging en balkon op het westen.

Locatie:

De wijk Groenhouten ligt tussen Amersfoort en Leusden in, ten westen van winkelcentrum De Hamershof en begrensd door de Groene Zoom en Noorderinslag. Deze buurt ligt in het hart van Leusden en kenmerkt zich door volwassen groen, royale percelen en hofvormige straten die op een centrale ontsluitingsweg uitkomen. Kleine paden en waterpartijen doorsnijden het groene hart van de wijk zodat u, al fietsend of wandelend, kunt genieten van de natuur aan het water en de rustieke plantsoenen. Daarnaast zijn winkelcentrum De Hamershof, kerken, het zwembad en sportfaciliteiten op loop- of fietsafstand. Ook de aansluitingen richting A28, A1 en openbaar vervoer zijn prima vertegenwoordigd.

Dan de woning zelf:

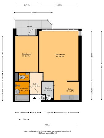
Centrale hal met intercom en liftinstallatie. Vanuit de portiek komt u in de hal van het appartement. De woonkamer is bijzonder licht door de grote ramen. De halfopen keuken grenst aan de woonkamer. Naast de keuken ligt de inpandige berging met wasmachineaansluiting. Vanuit de hal en woonkamer is de slaapkamer toegankelijk. Het balkon welke toegankelijk is vanuit de slaapkamer is gelegen op het westen.
De badkamer is voorzien van een wastafel, ligbad en douche. Het toilet is separaat.

In de onderbouw is er nog een eigen berging aanwezig.

Bijzonderheden:

- Servicekosten ca. € 176,16 per maand voor de woning, €10,44 voor de berging, exclusief voorschot stookkosten van ca. € 110,- per maand
- De verkoper werkt met een projectnotaris.

Heerlijk wonen nabij het centrum, in een appartement met balkon... Een echte ‘buiten kans’!

Kaart

Kenmerken

Overdracht

Referentienummer
00090/8359633
Vraagprijs
€ 265.000,- k.k.
Status
Verkocht
Aanvaarding
In overleg
Aangeboden sinds
Maandag 23 september 2024
Laatste wijziging
Donderdag 2 januari 2025

Bouw

Type object
Appartement, portiekflat
Woonlaag
3e woonlaag
Soort bouw
Bestaande bouw
Bouwjaar
1985
Type dak
Platdak
Isolatievormen
Muurisolatie

Oppervlaktes en inhoud

Woonoppervlakte
57 m²
Inhoud
189 m³
Oppervlakte gebouwgebonden buitenruimte
6 m²

Indeling

Aantal bouwlagen
1
Aantal kamers
2 (waarvan 1 slaapkamer)

Locatie

Ligging
Aan rustige weg
In woonwijk
Vrij uitzicht

Energieverbruik

Energielabel
D

Uitrusting

Warm water
Elektrische boiler
Badkamervoorzieningen
Douche
Ligbad
Wastafel
Heeft een balkon
Ja
Heeft kabel-tv
Ja
Heeft een lift
Ja
Heeft schuur/berging
Ja
Heeft ventilatie
Ja

Media

Plattegronden

Brochure(s) en overige bijlagen