Verkocht:Claverenbladstraat 37, 3833 JB Leusden - Foto
Verkocht
+42

Claverenbladstraat 37 3833 JB Leusden

  • Woonhuis
  • 6 kamers
  • 4 slaapkamers
  • Bouwjaar 1983
  • 128 m² perceeloppervlakte
  • 106 m² gebruiksoppervlakte
  • B Energielabel B

Beschrijving

Wil jij wonen in de kindvriendelijke wijk Claverenblad met parkeren op eigen terrein, uitgebouwde woonkamer, vrij zicht aan de achterzijde, een heerlijke tuin op het noordwesten en lopend naar het winkelcentrum, zwembad of de sportvelden?

Kijk dan niet verder! Deze gezinswoning met 4 slaapkamers is nu te koop.

Indeling begane grond:

Hal met meterkast, toiletruimte en een trap naar de 1e verdieping. De gehele begane grond is voorzien van een houten vloer.

Aan de voorzijde van de woning is de luxe keuken (2024) gesitueerd. Deze is voorzien van een fraai werkblad en diverse inbouwapparatuur.

Uitgebouwde tuingerichte woonkamer. Voor extra bergruimte is er ook nog de praktische kast onder de trap.
Vanuit de woonkamer stap je in de privacy-volle achtertuin met stenen berging en achterom. Achter de woning heb je direct een speelveld, ideaal met opgroeiende kinderen.

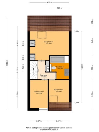
Eerste verdieping:

Overloop met cv-kast. Drie slaapkamers waarvan twee met dakramen. Badkamer met bad, toilet, wastafelmeubel en wasmachineaansluiting.

Tweede verdieping:

Vaste trap naar de 2e etage waarbij je aankomt bij de vierde slaapkamer. Ook is op deze etage een kleine werkruimte. Deze werkruimte en slaapkamer zijn voorzien van een grote dakkapel.

Algemeen:

Deze tussenwoning is een geweldige gezinswoning in een kindvriendelijke omgeving waar je direct achter de woning een speelveldje vindt. Het vrije uitzicht aan de achterkant van de woning geeft naast extra veel licht ook gevoel van extra ruimte.

Kaart

Kenmerken

Overdracht

Referentienummer
00090/8258229
Vraagprijs
€ 450.000,- k.k.
Status
Verkocht
Aanvaarding
In overleg
Aangeboden sinds
Dinsdag 20 augustus 2024
Laatste wijziging
Dinsdag 4 februari 2025

Bouw

Type object
Woonhuis, eengezinswoning, tussenwoning
Soort bouw
Bestaande bouw
Bouwjaar
1983
Type dak
Zadeldak
Isolatievormen
Dakisolatie
Muurisolatie
Vloerisolatie

Oppervlaktes en inhoud

Perceeloppervlakte
128 m²
Woonoppervlakte
106 m²
Inhoud
376 m³
Oppervlakte gebouwgebonden buitenruimte
1 m²

Indeling

Aantal bouwlagen
3
Aantal kamers
6 (waarvan 4 slaapkamers)

Locatie

Ligging
Aan rustige weg
In woonwijk

Tuin

Type
Achtertuin
Hoofdtuin
Ja
Heeft een achterom
Ja
Staat
Normaal

Energieverbruik

Energielabel
B

Uitrusting

Warm water
CV-ketel
Badkamervoorzieningen
Ligbad
Toilet
Wastafelmeubel
Heeft kabel-tv
Ja
Tuin aanwezig
Ja
Heeft schuur/berging
Ja
Heeft een dakraam
Ja