Verkocht:Poortersdreef 105, 3824 DM Amersfoort - Foto
Verkocht
+52

Poortersdreef 105 3824 DM Amersfoort

  • Woonhuis
  • 7 kamers
  • 5 slaapkamers
  • Bouwjaar 1996
  • 263 m² perceeloppervlakte
  • 181 m² gebruiksoppervlakte
  • B Energielabel B

Beschrijving

Ben jij op zoek naar een riante, uitgebouwde familiewoning met een heerlijke tuin?!

Dan is deze geschakelde twee-onder-één-kapwoning met garage aan de rand van de groene en kindvriendelijke wijk “Nieuwland” écht iets voor jou! Een groot pluspunt van deze woning is de vrije ligging aan de achterzijde.

“Royaal”… Dat is het woord dat past bij deze fijne woning! Met een woonoppervlak van ca. 200 m2, veel leefruimte op de begane grond, vijf slaapkamers, een inpandige garage en een diepe en brede achtertuin is dit hét ideale gezinshuis.

De woning is gebouwd in 1996, volledig geïsoleerd, voorzien van vloerverwarming en door de huidige eigenaar keurig onderhouden.

Woonomgeving:

De kindvriendelijke wijk “Nieuwland” kenmerkt zich door veel groen. Alle benodigde voorzieningen bevinden zich op loopafstand. Het grote wijkpark met uiteenlopende speelmogelijkheden voor kinderen ligt binnen handbereik evenals winkelcentrum “De Nieuwe Hof” met een uitgebreid winkelaanbod voor de dagelijkse boodschappen.

Diverse basisscholen, sportfaciliteiten en openbaar vervoer bevinden zich in de nabije omgeving. De historische binnenstad van Amersfoort met haar gezellige restaurants, terrassen is met de fiets te bereiken binnen 20 minuten en in 15 minuten met buslijn 2. Via de uitvalswegen A1 en A28 bereik je in korte tijd steden zoals Utrecht, Amsterdam en Arnhem.

De indeling is als volgt:

1. Begane grond

Bij binnenkomst komt u in het portaal met de meterkast, dat toegang geeft tot de hal. Vanuit de hal bereikt u de toiletruimte, trapopgang, trapkast en de garage, die is voorzien van elektra en wateraansluiting. De uitgebouwde woonkamer biedt veel ruimte en dankzij de openslaande tuindeuren geniet u van een prettige verbinding met de zonnige achtertuin.

Aan de voorzijde van de woning vindt u de ruime leefkeuken. Samen koken is hier geen probleem, want de royale L-opstelling biedt veel werk- en kastruimte, waardoor u elkaar niet snel in de weg staat. De grote ramen bieden in de keuken uitzicht op de wijk en zorgen voor mooie lichtinval.

Vanaf de bouw is de woning uitgebouwd, wat een unieke extra ruimte oplevert. Aan de zijkant van de woning, achter de garage, is een uitbouw gerealiseerd die veel ruimte in de woonkamer creëert. De uitbouw biedt perfect ruimte voor een eetkamer, speelruimte voor de kinderen of een comfortabele thuiswerkplek.

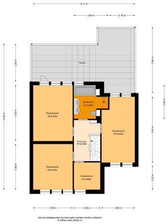
2. Eerste verdieping

Op de eerste verdieping vindt u een lichte overloop die toegang geeft tot drie slaapkamers, waarvan één is uitgerust met een dakterras. Bovendien is er nog een extra kamer boven de garage, ideaal als slaapkamer, werkkamer of logeerkamer. De badkamer is compleet, met een ligbad, inloopdouche, toilet en dubbele wastafel.

3. Tweede verdieping

De tweede verdieping beschikt over een overloop met cv-opstelling en wasmachineaansluiting. Daarnaast is er bergruimte met een dakraam, ca. 1,7 meter hoog.

De vijfde slaapkamer is uitgerust met een dakkapel, waardoor deze kamer heerlijk licht is. Deze slaapkamer heeft aan de zijkant nog een afgesloten opslagruimte onder het schuine dak.

Tuin

De tuin is een ware oase van rust en biedt volop privacy dankzij de vrije ligging aan de achterzijde. Met een diepte van ca. 13,5 meter en een breedte van ca. 8,5 meter is er ruimte genoeg voor meerdere terrassen, zodat u op elk moment van de dag kunt genieten van de zon. De tuin is ook via de achterzijde te bereiken. Hier bevindt zich een ruim plein met meerdere parkeerplaatsen.

De voortuin biedt parkeergelegenheid voor één auto en is uitgerust met een oplaadpunt voor elektrische voertuigen. Daarnaast vindt u in de straat meerdere parkeerplaatsen voor de deur.

Kaart

Kenmerken

Overdracht

Referentienummer
00090/8416533
Vraagprijs
€ 719.000,- k.k.
Status
Verkocht
Aanvaarding
In overleg
Aangeboden sinds
Woensdag 9 oktober 2024
Laatste wijziging
Maandag 23 december 2024

Bouw

Type object
Woonhuis, eengezinswoning, geschakelde twee onder een kap woning
Soort bouw
Bestaande bouw
Bouwjaar
1996
Type dak
Zadeldak
Isolatievormen
Dakisolatie
Dubbel glas
Muurisolatie
Vloerisolatie

Oppervlaktes en inhoud

Perceeloppervlakte
263 m²
Woonoppervlakte
181 m²
Inhoud
714 m³
Oppervlakte gebouwgebonden buitenruimte
44 m²

Indeling

Aantal bouwlagen
3
Aantal kamers
7 (waarvan 5 slaapkamers)

Locatie

Ligging
In woonwijk

Tuin

Type
Achtertuin
Hoofdtuin
Ja
Oriëntering
West
Heeft een achterom
Ja
Staat
Goed onderhouden

Energieverbruik

Energielabel
B

Uitrusting

Warm water
CV-ketel
Badkamervoorzieningen
Douche
Dubbele wastafel
Ligbad
Toilet
Parkeergelegenheid
Aangebouwde stenen garage
Heeft kabel-tv
Ja
Tuin aanwezig
Ja
Heeft een garage
Ja
Heeft een dakraam
Ja
Heeft ventilatie
Ja

Brochure(s) en overige bijlagen