Verkocht:Noordewierweg 97A, 3812 DC Amersfoort - Foto
Verkocht
+28

Noordewierweg 97A 3812 DC Amersfoort

  • Appartement
  • 2 kamers
  • 2 slaapkamers
  • Bouwjaar 1928
  • 81 m² gebruiksoppervlakte
  • C Energielabel C

Beschrijving

Strak afgewerkt appartement met zonnig dakterras in het hippe Soesterkwartier

Ben je op zoek naar een ruim, modern en instapklaar appartement op een toplocatie in Amersfoort? Dit sfeervolle appartement van 80 m², gelegen in het bruisende Soesterkwartier, heeft alles wat je nodig hebt! De royale woonkamer met open keuken beslaat maar liefst 59 m² en vormt het hart van de woning. Hier geniet je van een lichte en comfortabele leefruimte met moderne voorzieningen. Het zonnige dakterras aan de achterzijde biedt volop privacy en is dé ideale plek om te ontspannen.

Centrale ligging
De ligging van dit appartement is perfect: op slechts 5 minuten fietsen van de historische binnenstad en het centraal station. In de directe omgeving bevinden zich diverse winkels en het levendige Eemplein, ideaal voor dagelijkse boodschappen en ontspanning. Dankzij uitstekende verbindingen met het openbaar vervoer en de nabijheid van alle voorzieningen, woon je hier centraal én rustig.

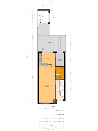
Indeling van de woning

Begane grond:
Bij binnenkomst vind je een hal met meterkast en een eigen trapopgang naar de woning.

1e verdieping:
Op de eerste verdieping kom je binnen op de overloop met een apart toilet. De royale woonkamer met open keuken vormt een sfeervolle en lichte ruimte. De moderne keuken, uitgevoerd in lichte tinten met een donker aanrechtblad, is voorzien van een 4-pits gaskookplaat, een koel-/vriescombinatie en een vaatwasser. Vanuit de keuken stap je zo het zonnige dakterras op, dat via een trap toegang biedt tot de berging en de achterom. Ook vanuit de woonkamer bereik je de slaapkamer en de moderne badkamer, die is uitgerust met een wastafel en een inloopdouche. De gehele verdieping is voorzien van een strakke laminaatvloer.

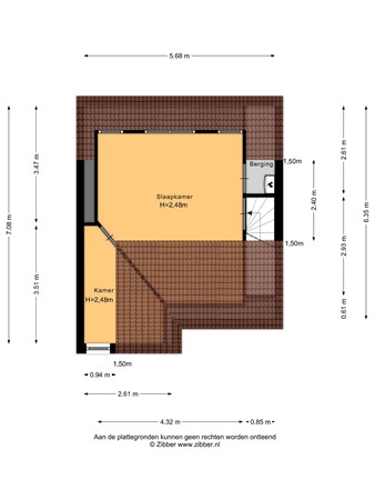
2e verdieping:
De tweede verdieping beschikt over een extra slaapkamer, ruimte voor de cv-ketel en praktische bergruimte.
Toekomstige ontwikkelingen

De herinrichting van de Noordewierweg is in volle gang. Deze straat krijgt een rustiger en groener karakter, waarbij auto's te gast zijn. Voor meer informatie kun je terecht op Amersfoort.nl/herinrichting-noordewierweg.
Ben je nieuwsgierig geworden? Kom gerust een kijkje nemen, we laten dit prachtige appartement graag aan je zien!

Kaart

Kenmerken

Overdracht

Vraagprijs
€ 349.000,- k.k.
Status
Verkocht
Aanvaarding
In overleg
Aangeboden sinds
Dinsdag 22 juli 2025
Laatste wijziging
Dinsdag 7 oktober 2025

Bouw

Type object
Appartement, bovenwoning
Woonlaag
1e woonlaag
Soort bouw
Bestaande bouw
Bouwjaar
1928
Dakbedekking
Dakpannen
Type dak
Samengesteld
Isolatievormen
Dakisolatie
Dubbel glas
Muurisolatie

Oppervlaktes en inhoud

Woonoppervlakte
81 m²
Inhoud
268 m³
Oppervlakte externe bergruimte
11 m²
Oppervlakte gebouwgebonden buitenruimte
28 m²
Tuinoppervlakte
20 m²

Indeling

Aantal bouwlagen
2
Aantal kamers
2 (waarvan 2 slaapkamers)

Locatie

Ligging
In woonwijk

Tuin

Type
Zonneterras
Hoofdtuin
Ja
Oriëntering
Noord-oost
Heeft een achterom
Ja
Staat
Goed onderhouden
Tuin 2 - Type
Zonneterras
Tuin 2 - Staat
Goed onderhouden

Energieverbruik

Energielabel
C

CV ketel

CV ketel
Remeha
Warmtebron
Gas
Bouwjaar
2010
Combiketel
Ja
Eigendom
Eigendom

Uitrusting

Warm water
CV-ketel
Verwarmingssysteem
Centrale verwarming
Badkamervoorzieningen
Inloopdouche
Wastafel
Heeft kabel-tv
Ja
Glasvezelaansluiting aanwezig
Ja
Tuin aanwezig
Ja
Heeft schuur/berging
Ja
Heeft ventilatie
Ja

Vereniging van Eigenaren

Ingeschreven bij de KvK
Ja
Jaarlijkse vergadering
Ja
Periodieke bijdrage
Ja
Reservefonds
Ja
Onderhoudsverwachting
Ja
Opstal verzekering
Ja

Kadastrale gegevens

Kadastrale aanduiding
Amersfoort D 11610
Omvang
Appartementsrecht of complex
Eigendomsituatie
Eigen grond