Verkocht:Fahrenheitstraat 18, 3817 WD Amersfoort - Foto
Verkocht
+55

Fahrenheitstraat 18 3817 WD Amersfoort

  • Eengezinswoning
  • 4 kamers
  • 3 slaapkamers
  • Bouwjaar 1936
  • 190 m² perceeloppervlakte
  • 130 m² gebruiksoppervlakte
  • C Energielabel C

Beschrijving

Sfeervolle jaren '30 woning met zonnige tuin en royale keukenuitbouw

In een geliefde straat in het Leusderkwartier vind je deze charmante jaren ’30 tussenwoning (in een rijtje van drie) met karakter, ruimte én comfort.

De woning beschikt over een fraaie uitbouw aan de achterzijde met veel lichtinval, een diepe zonnige tuin en een vrijstaande grote berging met openslaande garagedeuren.

De woning is met zorg gemoderniseerd, waarbij originele details zoals glas-in-loodramen, een granito vloer, paneeldeuren en de kamer-en-suite behouden zijn gebleven. Tegelijkertijd is het wooncomfort van nu volop aanwezig. De uitbouw van de keuken uit 2002 zorgt voor extra ruimte, licht en een fijne sfeer. Met vier volwaardige slaapkamers (en een vijfde eenvoudig te realiseren) en een ruime badkamer, is dit een ideale woning voor een gezin dat op zoek is naar karakter én comfort.

Wonen in het Leusderkwartier

De Fahrenheitstraat is een rustige, groene straat in een populaire wijk. Alle voorzieningen liggen binnen handbereik: basisscholen en middelbare scholen zijn dichtbij, evenals winkels, sportfaciliteiten en openbaar vervoer. Op slechts vijf minuten fietsen sta je in het historische centrum van Amersfoort. Natuurliefhebbers kunnen hun hart ophalen in het op 300 meter afstand gelegen bosgebied Nimmerdor: een 48 hectare groot bos met wandelpaden,een losloopgebied voor honden en een rechtstreekse doorgang naar landgoed Den Treek Ook de uitvalswegen (A1 en A28) zijn snel bereikbaar.

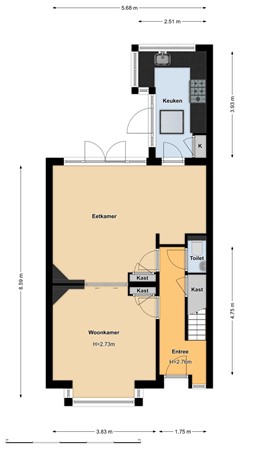
Indeling

Begane grond:

Entree met authentieke details zoals een glas-in-loodraam, originele wandtegels, granito vloer en kapstok. Vanuit de hal toegang tot de trapkast, meterkast, toilet en trapopgang. De sfeervolle kamer-en-suite is afgewerkt met een visgraat parketvloer met notarisrand. De voorkamer heeft een erker, originele schouw met houtkachel en inbouwkasten. Via de suite-deuren met glas-in-lood bereik je de achterkamer met eveneens een originele schouw, vaste kast en openslaande deuren naar de tuin.

De keuken is uitgebouwd in een speelse stijl met veel lichtinval en beschikt over een complete keukenopstelling: koelkast, vaatwasser, 5-pits fornuis, afzuigkap, magic corner en een close-in boiler. De plavuizenvloer met vloerverwarming zorgt voor extra comfort.

De zonnige achtertuin is fraai aangelegd met klinkerbestrating, twee terrassen, weelderig groen en een achterom. Achterin de tuin staat een grote vrijstaande berging met openslaande garagedeuren — ideaal voor fietsen, hobby’s of opslag.

Eerste verdieping:

Overloop met karakteristieke hoekkast. De ouderslaapkamer ligt aan de achterzijde en beschikt over twee vaste kasten en een balkon. Daarnaast zijn er twee slaapkamers aan de voorzijdezijde, waarvan één met vaste kast. De badkamer is modern en ruim, met een royale inloopdouche, dubbele wastafel, tweede toilet, designradiator en vloerverwarming.

Tweede verdieping:

Bereikbaar via een vaste trap. Hier bevindt zich een open, ruime en hoge zolderruimte met twee dakkapellen, de cv-opstelling en de wasmachineaansluiting. Deze verdieping biedt volop mogelijkheden om één of twee extra slaapkamers te realiseren.

Kortom: een ideale gezinswoning op een toplocatie waar sfeer, ruimte en comfort samenkomen.

Kaart

Kenmerken

Overdracht

Vraagprijs
€ 789.000,- k.k.
Status
Verkocht
Aanvaarding
In overleg
Aangeboden sinds
Vrijdag 27 juni 2025
Laatste wijziging
Woensdag 23 juli 2025

Bouw

Type object
Eengezinswoning, woonhuis, tussenwoning
Soort bouw
Bestaande bouw
Bouwjaar
1936
Dakbedekking
Dakpannen
Type dak
Zadeldak
Isolatievormen
Dakisolatie
Muurisolatie

Oppervlaktes en inhoud

Perceeloppervlakte
190 m²
Woonoppervlakte
130 m²
Inhoud
439 m³
Oppervlakte externe bergruimte
13 m²
Oppervlakte gebouwgebonden buitenruimte
3 m²

Indeling

Aantal bouwlagen
3
Aantal kamers
4 (waarvan 3 slaapkamers)

Locatie

Ligging
Aan rustige weg
In woonwijk

Tuin

Type
Achtertuin
Hoofdtuin
Ja
Heeft een achterom
Ja
Staat
Goed onderhouden
Tuin 2 - Type
Achtertuin
Tuin 2 - Staat
Goed onderhouden
Tuin 3 - Type
Voortuin
Tuin 3 - Staat
Goed onderhouden

Energieverbruik

Energielabel
C

CV ketel

CV ketel
Intergas
Warmtebron
Gas
Bouwjaar
2012
Combiketel
Ja
Eigendom
Eigendom

Uitrusting

Warm water
CV-ketel
Verwarmingssysteem
Centrale verwarming
Badkamervoorzieningen
Douche
Dubbele wastafel
Toilet
Heeft een balkon
Ja
Heeft kabel-tv
Ja
Heeft een rookkanaal
Ja
Glasvezelaansluiting aanwezig
Ja
Tuin aanwezig
Ja
Heeft schuur/berging
Ja

Kadastrale gegevens

Kadastrale aanduiding
Amersfoort B 9703
Perceeloppervlakte
190 m²
Omvang
Geheel perceel
Eigendomsituatie
Eigen grond

Brochure(s) en overige bijlagen

brochure Download