Verkocht:De Mui 45, 3823 TT Amersfoort - Foto
Verkocht
+50

De Mui 45 3823 TT Amersfoort

  • Appartement
  • 3 kamers
  • 2 slaapkamers
  • Bouwjaar 1995
  • 91 m² gebruiksoppervlakte
  • B Energielabel B

Beschrijving

Ruim en Recent Gerenoveerd Appartement met Balkon, Berging en Privé Parkeerplaats gelegen op de Bovenste Verdieping in de Wijk Kattenbroek, Amersfoort

Dit mooie appartement aan De Mui 45, gelegen op de bovenste (derde) verdieping van een kleinschalig complex in de geliefde wijk Kattenbroek, biedt een ruim en comfortabel woonklimaat. Met slechts zes appartementen per woonlaag geniet u hier van een rustige en aangename sfeer.

Het appartement ligt op een gunstige locatie nabij winkelcentrum Emiclaer, diverse scholen en sportvoorzieningen, en biedt gemakkelijke toegang tot de A1 en A28. Op slechts 15 minuten fietsen van het stadscentrum van Amersfoort vindt u hier de ideale balans tussen rust en bereikbaarheid.

Indeling en Voorzieningen

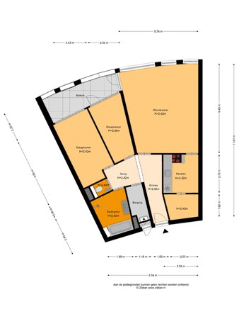
Het appartement heeft een moderne, lichte indeling. Bij binnenkomst betreedt u de ruime hal met berging/stookruimte.

De royale woonkamer, voorzien van grote ramen, zorgt voor veel natuurlijk licht en biedt toegang tot een ruim balkon/loggia, waar u kunt genieten van de buitenlucht en een mooi uitzicht.

De recent vernieuwde halfopen keuken heeft een praktische L-opstelling en grenst aan een bijkeuken, die extra opbergruimte biedt.

Daarnaast beschikt het appartement over twee comfortabele slaapkamers en een recent gemoderniseerde badkamer met een wastafelmeubel, inloopdouche en ligbad. Er is tevens een separaat toilet. Dankzij de recente vernieuwing van de vloer-, wand- en schilderafwerking is het appartement direct te betrekken.

Parkeren, Bergruimte en Servicekosten

Elke woning in het complex beschikt over een eigen berging op de begane grond, ideaal voor het opbergen van fietsen en andere spullen. Daarnaast heeft u de beschikking over een privé parkeerplaats in de overdekte parkeergarage, die veilig is afgesloten met een op afstand bedienbare deur. De servicekosten bedragen €230,54 per maand.

Geweldige Locatie

Kattenbroek staat bekend om zijn unieke architectuur en groene omgeving. Met winkelcentrum Emiclaer, scholen en sportvoorzieningen binnen handbereik, biedt deze locatie alle voorzieningen die u nodig heeft. Uitvalswegen en openbaar vervoer zijn uitstekend bereikbaar, waardoor dit appartement ook ideaal is voor woon-werkverkeer.

Kortom, een uitstekend onderhouden appartement met moderne afwerking en comfortabele voorzieningen, gelegen op de bovenste verdieping, perfect voor wie zoekt naar een fijne woonplek in Amersfoort!

Let op: De verkoper werkt met een projectnotaris.

Kaart

Kenmerken

Overdracht

Referentienummer
00090/8235683
Vraagprijs
€ 390.000,- k.k.
Status
Verkocht
Aanvaarding
In overleg
Aangeboden sinds
Donderdag 8 augustus 2024
Laatste wijziging
Dinsdag 18 februari 2025

Bouw

Type object
Appartement, portiekflat
Woonlaag
4e woonlaag
Soort bouw
Bestaande bouw
Bouwjaar
1995
Type dak
Platdak
Isolatievormen
Dubbel glas
Muurisolatie

Oppervlaktes en inhoud

Woonoppervlakte
91 m²
Inhoud
302 m³
Oppervlakte gebouwgebonden buitenruimte
9 m²

Indeling

Aantal bouwlagen
1
Aantal kamers
3 (waarvan 2 slaapkamers)

Locatie

Ligging
Aan rustige weg
In woonwijk
Vrij uitzicht

Energieverbruik

Energielabel
B

Uitrusting

Warm water
CV-ketel
Badkamervoorzieningen
Douche
Ligbad
Wastafelmeubel
Parkeergelegenheid
Parkeerkelder
Heeft kabel-tv
Ja
Heeft een lift
Ja
Heeft een garage
Ja
Heeft schuur/berging
Ja
Heeft ventilatie
Ja