Drenth Makelaars
Drenth Makelaars
Verkocht:Roemerstraat 27, 3861 JX Nijkerk - Foto
Verkocht
+28

Roemerstraat 27 3861 JX Nijkerk

  • Woonhuis
  • 4 kamers
  • 3 slaapkamers
  • Bouwjaar 1977
  • 96 m² perceeloppervlakte
  • 82 m² gebruiksoppervlakte
  • E Energielabel E

Beschrijving

Uitgebouwde woning met potentie op centrale locatie in Nijkerk

Aan een rustig straatje, op loopafstand van het centrum van Nijkerk, staat deze uitgebouwde woning met een zonnige achtertuin op het zuidwesten. De woning beschikt over een lichte woonkamer, ruime woonkeuken, drie slaapkamers, een badkamer en een bergzolder.

De woning is functioneel, maar op onderdelen gedateerd en kan een modernisatie gebruiken om weer aan de woonwensen van nu te voldoen. Voor wie op zoek is naar een centraal gelegen woning met ruimte én mogelijkheden, is dit een kansrijk uitgangspunt.

Centrale ligging

De woning ligt in een rustige eenrichtingsverkeerstraat met parkeergelegenheid, in een wijk met een mix van karakteristieke en vernieuwde woningen. Het centrum van Nijkerk, met winkels, horeca en supermarkten, ligt op loopafstand. Ook het NS-station en bushaltes zijn snel te bereiken. Een praktische plek voor wie alles dichtbij wil hebben.

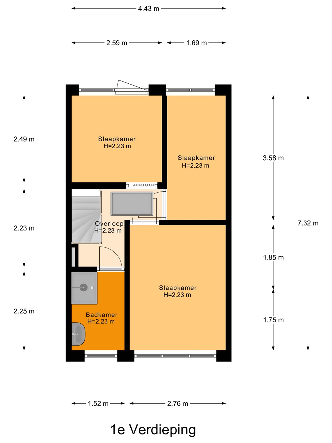
Indeling

Begane grond:

Entree met hal, meterkast en trapopgang. Woonkamer aan de voorzijde met trapkast. Aan de achterzijde bevindt zich de uitgebouwde woonkeuken met toegang tot de tuin.

Eerste verdieping:

Overloop, drie slaapkamers en een eenvoudige badkamer met douche en wastafel.

Vliering:

Via een vlizotrap bereikbare bergzolder met cv-opstelling. De nokhoogte is circa 1,50 meter.

Tuin:

De achtertuin is gelegen op het zuidwesten en biedt volop zon. Achterin bevindt zich een stenen berging en er is een achterom aanwezig.

Kortom: een woning met een fijne ligging en een solide basis, die met de juiste aandacht en modernisering kan uitgroeien tot een comfortabel (t)huis.

Kaart

Kenmerken

Overdracht

Referentienummer
00090/9271294
Vraagprijs
€ 350.000,- k.k.
Status
Verkocht
Aanvaarding
In overleg
Aangeboden sinds
Dinsdag 8 juli 2025
Laatste wijziging
Maandag 15 december 2025

Bouw

Type object
Woonhuis, eengezinswoning, tussenwoning
Soort bouw
Bestaande bouw
Bouwjaar
1977
Type dak
Samengesteld
Keurmerken
Bouwkundige keuring
Isolatievormen
Gedeeltelijk dubbel glas

Oppervlaktes en inhoud

Perceeloppervlakte
96 m²
Woonoppervlakte
82 m²
Inhoud
299 m³

Indeling

Aantal bouwlagen
3
Aantal kamers
4 (waarvan 3 slaapkamers)

Locatie

Ligging
Aan rustige weg
In centrum
In woonwijk

Tuin

Type
Achtertuin
Hoofdtuin
Ja
Oriëntering
Zuid-west
Heeft een achterom
Ja
Staat
Normaal

Energieverbruik

Energielabel
E

Uitrusting

Warm water
CV-ketel
Badkamervoorzieningen
Douche
Wastafel
Heeft kabel-tv
Ja
Tuin aanwezig
Ja
Heeft schuur/berging
Ja

Brochure(s) en overige bijlagen