Drenth Makelaars
Drenth Makelaars
Verkocht:Verdiweg 291, 3816 KJ Amersfoort - Foto
Verkocht
+32

Verdiweg 291 3816 KJ Amersfoort

  • Appartement
  • 4 kamers
  • 3 slaapkamers
  • Bouwjaar 1972
  • 101 m² gebruiksoppervlakte
  • C Energielabel C

Beschrijving

Ruim en licht 4-kamer appartement op de eerste verdieping in een groene omgeving!

Welkom in dit prachtig gelegen en royale 4-kamer appartement op de eerste verdieping van een goed onderhouden appartementencomplex met lift. Een woning waar licht, ruimte en comfort samenkomen.

De appartementen aan de Verdiweg staan bekend om de indrukwekkende woonkamer met grote ramen die zorgen voor een optimale lichtinval, zelfs op bewolkte dagen. Door de brede opzet van de woonkamer en de aansluitende keuken ervaart u een ruimtelijke en open sfeer.

Duurzaam en toekomstbestendig

De komende maanden worden de kozijnen vervangen door nieuwe aluminium kozijnen met hoogwaardig HR+++ glas, wordt het dak van het appartementencomplex geïsoleerd en het ventilatiesysteem vernieuwd. Hiermee is het appartement klaar voor de toekomst. De bijdrage aan de Vereniging van Eigenaren (VvE) bedraagt €377,50 per maand.

Ideale ligging: groen én centraal

Dit appartement ligt in de rustige en groene wijk Schuilenburg. U heeft alles binnen handbereik: het winkelcentrum Euterpeplein en park Randenbroek bevinden zich op loopafstand, terwijl het centrum van Amersfoort slechts 10 minuten fietsen is. Bovendien ligt het appartement gunstig ten opzichte van de snelwegen A1 en A28. Via de nabijgelegen fietstunnel bereikt u het prachtige natuurgebied De Schammer, ideaal voor lange wandelingen en fietstochten. Hier geniet u van het beste van twee werelden: dicht bij de stad én de natuur.

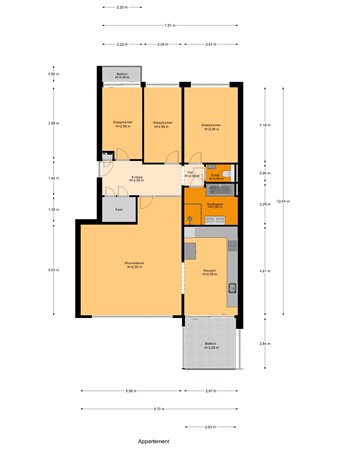
Indeling van het appartement

Begane grond:

Centrale entree met intercom en brievenbussen. Via de lift of het trappenhuis bereikt u de eerste verdieping.
Eerste verdieping:
U komt binnen in een ruime hal met een handige vaste kast voor uw garderobe en een aparte kast met de cv-opstelling (Intergas HR, 2023).

De lichte en royale woonkamer ligt aan de achterzijde van het gebouw en grenst aan de keuken. Deze is gesitueerd in de voormalige slaapkamer. De keuken is voorzien van inbouwapparatuur. Vanuit de keuken is er toegang tot het balkon op het zuidwesten.

Aan de centrale hal grenzen drie slaapkamers, gelegen aan de koele kant van het gebouw.

De badkamer is modern en voorzien van een douche, bad en een wastafelmeubel. Het toilet is separaat en eveneens keurig afgewerkt.

Extra's:

• Eigen berging in de onderbouw, ideaal voor fietsen en opslag.
• Ruim parkeerterrein met voldoende parkeergelegenheid voor bewoners.
• Twee laadpalen aanwezig voor elektrische auto’s.

Wilt u dit lichte en ruime appartement zelf ervaren? Maak dan snel een afspraak voor een bezichtiging! Vergeet niet uw eigen NVM-aankoopmakelaar in te schakelen. Een NVM-aankoopmakelaar behartigt uw belangen en helpt u bij een zorgeloze aankoop. Adressen van collega NVM-aankoopmakelaars vindt u op Funda.

Kaart

Kenmerken

Overdracht

Referentienummer
00090/9211456
Vraagprijs
€ 375.000,- k.k.
Status
Verkocht
Aanvaarding
In overleg
Aangeboden sinds
Donderdag 19 juni 2025
Laatste wijziging
Maandag 20 oktober 2025

Bouw

Type object
Appartement, portiekflat
Woonlaag
1e woonlaag
Soort bouw
Bestaande bouw
Bouwjaar
1972
Type dak
Platdak
Isolatievormen
Dubbel glas

Oppervlaktes en inhoud

Woonoppervlakte
101 m²
Inhoud
314 m³
Oppervlakte gebouwgebonden buitenruimte
10 m²

Indeling

Aantal bouwlagen
1
Aantal kamers
4 (waarvan 3 slaapkamers)

Locatie

Ligging
In woonwijk

Energieverbruik

Energielabel
C

Uitrusting

Warm water
CV-ketel
Badkamervoorzieningen
Douche
Ligbad
Wastafelmeubel
Heeft een balkon
Ja
Heeft kabel-tv
Ja
Heeft een lift
Ja
Heeft schuur/berging
Ja
Heeft een schuifpui
Ja
Heeft ventilatie
Ja

Brochure(s) en overige bijlagen