Verkocht onder voorbehoud:Valutaboulevard 3A, 3825 BS Amersfoort - Foto
Verkocht onder voorbehoud
+23

Valutaboulevard 3A 3825 BS Amersfoort € 335.000,- k.k.

  • Appartement
  • 2 kamers
  • 1 slaapkamer(s)
  • Bouwjaar 2006
  • 52 m² gebruiksoppervlakte
  • A Energielabel A

Beschrijving

Ruimte, licht en modern comfort in Vathorst

Stijlvol 2-kamerappartement in een kleinschalig complex met eigen parkeerplaats
Welkom in dit moderne en uitstekend onderhouden appartement aan de rand van Vathorst!

Dit appartement is gerealiseerd tijdens een recente transformatie (2021-2023) waarin het gebouw is gesplitst tot een kleinschalig complex van vier eigentijdse appartementen. Tijdens de transformatie is het appartement modern afgewerkt, voorzien van duurzame voorzieningen en een praktische indeling die optimaal gebruik maakt van de beschikbare ruimte.

Met een woonoppervlakte van circa 52 m², een plafondhoogte van ruim 3,5 meter en veel lichtinval voelt dit appartement ruimtelijk en aangenaam aan. De slimme indeling maakt het appartement ideaal voor starters die op zoek zijn naar een betaalbare, stijlvolle en comfortabele woonruimte. Of u nu alleen woont, met een partner of juist behoefte heeft aan een extra ruimte voor bijvoorbeeld een thuiskantoor — dit appartement biedt de ruimte en flexibiliteit om het volledig naar eigen wens in te richten.

Woonomgeving

De woning is gelegen in een kleinschalig appartementencomplex in de populaire wijk Vathorst. Hier woont u rustig, maar met alle voorzieningen binnen handbereik. Op loop- en fietsafstand vindt u winkelcentrum Vathorst, scholen, sportvoorzieningen en station Amersfoort Vathorst.

Dankzij de ligging aan de rand van de wijk bent u binnen enkele minuten op de A1 of A28, waardoor steden als Utrecht, Zwolle en Amsterdam uitstekend bereikbaar zijn.

Vathorst staat bekend om zijn moderne architectuur, kindvriendelijke opzet en levendige karakter — een fijne plek om te wonen én te leven.

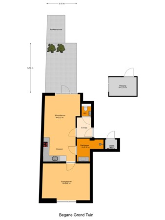
Indeling

Via de gezamenlijke entree bereikt u het appartement. Hier bevindt zich een interne berging met groepenkast en cv-ketel.

De hal geeft toegang tot de toiletruimte en de lichte woonkamer met open keuken. De hoge plafonds en grote ramen zorgen voor een heerlijk gevoel van ruimte en licht. Via de openslaande deuren in de woonkamer heeft u direct toegang tot het terras, een fijne plek om buiten te zitten. De keuken is geplaatst in 2023 en voorzien van moderne inbouwapparatuur.

De badkamer is uitgerust met vloerverwarming, ruime inloopdouche, wastafelmeubel en aansluiting voor de wasmachine. Aan de achterzijde bevindt zich de slaapkamer.

Buitenruimte en berging

Aan de voorzijde beschikt u over een terras met ruimte voor tuinieren, de eigen kliko’s en een zitje. Via de patiodeur bereikt u uw eigen ruime berging, met voldoende plaats voor fietsen of extra opslag. De woning heeft een eigen parkeerplaats direct voor uw eigen appartement.

Bijzonderheden

-Gebouwd in 2006, gesplitst en gemoderniseerd in 2021–2023
-VVE-bijdrage € 152,46 per maand (inclusief o.a. internet, televisie, opstalverzekering etc.)
-Voorschot energiekosten € 108,45 per maand
-Kleinschalig complex met vier appartementen voorzien van zonnepanelen
-Hoge plafonds in woonkamer/keuken van circa 3,5 meter
-Intergas ketel met vloerverwarming (2023)
-Moderne keuken en badkamer (2023)
-Slimme indeling met ruimte en flexibiliteit
-Eigen inpandige technische ruimte, ruime berging buiten en eigen parkeerplaats

Gelegen aan de rand van Vathorst, dichtbij voorzieningen en uitvalswegen
Of u nu op zoek bent naar uw eerste koopwoning, een onderhoudsarm appartement of een praktische woonruimte met karakter — dit appartement combineert licht, comfort en moderne afwerking op een aantrekkelijke locatie in Amersfoort-Vathorst.

Kaart

Kenmerken

Overdracht

Referentienummer
00090/9103870
Vraagprijs
€ 335.000,- k.k.
Status
Verkocht onder voorbehoud
Aanvaarding
In overleg
Aangeboden sinds
Vrijdag 16 mei 2025
Laatste wijziging
Donderdag 11 december 2025

Bouw

Type object
Appartement, portiekflat
Woonlaag
1e woonlaag
Soort bouw
Bestaande bouw
Bouwjaar
2006
Isolatievormen
Muurisolatie
Vloerisolatie

Oppervlaktes en inhoud

Woonoppervlakte
52 m²
Inhoud
264 m³

Indeling

Aantal bouwlagen
1
Aantal kamers
2 (waarvan 1 slaapkamer)

Locatie

Ligging
In woonwijk

Tuin

Type
Voortuin
Hoofdtuin
Ja
Staat
Normaal

Energieverbruik

Energielabel
A

Uitrusting

Warm water
CV-ketel
Badkamervoorzieningen
Douche
Wastafelmeubel
Parkeergelegenheid
Parkeerplaats
Heeft kabel-tv
Ja
Tuin aanwezig
Ja
Heeft een parkeerplaats
Ja
Heeft rolluiken
Ja
Heeft schuur/berging
Ja
Heeft ventilatie
Ja

Media

Plattegronden

Brochure(s) en overige bijlagen