Drenth Makelaars
Drenth Makelaars
Verkocht onder voorbehoud:Trombonestraat 8, 3822 CH Amersfoort - Foto
Verkocht onder voorbehoud
+50

Trombonestraat 8 3822 CH Amersfoort € 529.000,- k.k.

  • Eengezinswoning
  • 5 kamers
  • 4 slaapkamers
  • Bouwjaar 1989
  • 110 m² perceeloppervlakte
  • 110 m² gebruiksoppervlakte
  • A+ Energielabel A+

Beschrijving

Stel je voor: een instapklare woning op een toplocatie in Amersfoort, waar comfort, ruimte en duurzaamheid hand in hand gaan.

Trombonestraat 8 in de groene en rustige wijk Zielhorst is zo’n woning waar je direct enthousiast van wordt — dit is thuiskomen!

Woonomgeving

Deze uitstekend onderhouden tussenwoning ligt in een fijne, kindvriendelijke omgeving met veel groen. Aan de voorzijde kijk je heerlijk vrij weg en aan de achterzijde grenst de tuin aan een groot grasveld met bomen — zonder inkijk van buren. Dat geeft lucht én privacy.

Speeltuintjes, scholen, sportvoorzieningen, winkels en een park liggen praktisch om de hoek. En met uitstekende verbindingen naar het openbaar vervoer en de snelweg ben je zó in het centrum van Amersfoort of op weg naar andere steden.
Parkeren doe je gemakkelijk direct achter de woning aan het Fagotpad.

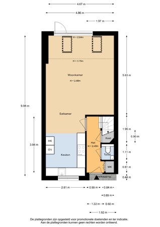
Indeling

Bij binnenkomst voel je het meteen: dit is een woning die met liefde en aandacht is vernieuwd. In 2023 is de complete begane grond aangepakt, met onder andere:

-een strakke PVC-vloer
-nieuw HR++-glas
-nieuwe Velux dakramen
-nieuwe binnendeuren
-traprenovatie met verlichting
-gestucte wanden en plafonds
-een moderne open keuken

De keuken is een echte blikvanger: gelegen aan de voorzijde, in L-opstelling met extra wandmeubel, en uitgevoerd met hoogwaardige apparatuur zoals een koelkast, vriezer, magnetron, stoomoven, vaatwasser, Quooker, inductiekookplaat en een composiet werkblad. Helemaal van nu en ideaal voor de kookliefhebber.

De uitgebouwde woonkamer aan de tuinzijde verrast met veel daglicht dankzij grote ramen, dakramen en een tuindeur. Het is een uitnodigende plek voor ontspanning, voor samenzijn en om het woonplezier écht te ervaren.

Eerste verdieping

Hier bevinden zich drie volwaardige slaapkamers, waarvan twee met vaste kasten. De badkamer (2023) is een fraaie ruimte met een moderne uitstraling, een royale inloopdouche, een tweede toilet en een stijlvol wastafelmeubel. Comfort en frisheid in één.

Zolder

De tweede verdieping biedt een fijne vierde slaapkamer met dakraam. Via de overloop zijn twee bergruimten bereikbaar. En heb je plannen voor extra kamers? Met een dakkapel creëer je hier eenvoudig twee volwaardige slaapkamers.

Buitenruimte

De achtertuin ligt gunstig op het zuidoosten en is strak, onderhoudsarm én sfeervol aangelegd. Je geniet hier vanaf de ochtend van de zon. Achterin de tuin staat een stenen berging voor fietsen en opslag. Het buitenschilderwerk van de hele woning is eind 2024 gedaan.

En dan nog iets moois: de woning beschikt over 10 zonnepanelen — klaar voor een duurzame toekomst en gunstig voor de maandlasten.

Tot slot

Moderne afwerking, slimme indeling, energiezuinig wonen en een heerlijke plek in Amersfoort: dit is zo’n woning waar je je meteen thuis voelt.

Maak snel een afspraak — deze kans wil je niet laten schieten!

Kaart

Kenmerken

Overdracht

Vraagprijs
€ 529.000,- k.k.
Status
Verkocht onder voorbehoud
Aanvaarding
In overleg
Aangeboden sinds
Donderdag 15 januari 2026
Laatste wijziging
Woensdag 18 februari 2026

Bouw

Type object
Eengezinswoning, woonhuis, tussenwoning
Soort bouw
Bestaande bouw
Bouwjaar
1989
Dakbedekking
Dakpannen
Type dak
Zadeldak
Isolatievormen
Dakisolatie
Dubbel glas
Muurisolatie
Vloerisolatie

Oppervlaktes en inhoud

Perceeloppervlakte
110 m²
Woonoppervlakte
110 m²
Inhoud
382 m³
Oppervlakte externe bergruimte
7 m²

Indeling

Aantal bouwlagen
3
Aantal kamers
5 (waarvan 4 slaapkamers)

Locatie

Ligging
In woonwijk
Vrij uitzicht

Tuin

Type
Achtertuin
Hoofdtuin
Ja
Heeft een achterom
Ja
Staat
Goed onderhouden
Tuin 2 - Type
Achtertuin
Tuin 2 - Staat
Goed onderhouden
Tuin 3 - Type
Voortuin
Tuin 3 - Staat
Goed onderhouden

Energieverbruik

Energielabel
A+

CV ketel

CV ketel
Remeha HR
Warmtebron
Gas
Bouwjaar
2021
Combiketel
Ja
Eigendom
Eigendom

Uitrusting

Warm water
CV-ketel
Verwarmingssysteem
Centrale verwarming
Badkamervoorzieningen
Douche
Toilet
Wastafelmeubel
Heeft kabel-tv
Ja
Glasvezelaansluiting aanwezig
Ja
Tuin aanwezig
Ja
Heeft schuur/berging
Ja
Heeft een dakraam
Ja
Heeft zonwering
Ja
Heeft zonnecollectoren
Ja
Heeft ventilatie
Ja

Kadastrale gegevens

Kadastrale aanduiding
Amersfoort N 816
Perceeloppervlakte
110 m²
Omvang
Geheel perceel
Eigendomsituatie
Eigen grond

Brochure(s) en overige bijlagen

brochure Download