Drenth Makelaars
Drenth Makelaars
Verkocht:Trombonestraat 16, 3822 CH Amersfoort - Foto
Verkocht
+39

Trombonestraat 16 3822 CH Amersfoort

  • Eengezinswoning
  • 5 kamers
  • 4 slaapkamers
  • Bouwjaar 1989
  • 110 m² perceeloppervlakte
  • 113 m² gebruiksoppervlakte
  • A Energielabel A

Beschrijving

Ruime lichte woning in Zielhorst – met volop mogelijkheden voor het hele gezin!

Op een fijne, vrije locatie in de geliefde wijk Zielhorst staat deze uitgebouwde eengezinswoning. De woning beschikt over drie slaapkamers, een royale zolder met dakkapel en een knusse, zonnige tuin met veel privacy. De woning is energiezuinig dankzij 10 zonnepanelen en biedt extra comfort met een airco op de begane grond. Dankzij de prettige indeling, de vrije ligging én de kindvriendelijke omgeving is dit het ideale huis voor gezinnen die op zoek zijn naar ruimte en comfort.

Ligging
De woning bevindt zich op een rustige plek met veel groen in de buurt. Aan de voorzijde ligt de woning heerlijk vrij, en de achtertuin grenst aan een groot grasveld omzoomd met bomen – zonder inkijk van buren. In de directe omgeving vind je diverse speeltuintjes, scholen, een sporthal, winkels en het park. Ook uitvalswegen en het openbaar vervoer zijn snel bereikbaar, waardoor je binnen enkele minuten zowel in het stadscentrum als op de snelweg bent.

Indeling
Begane grond: via de verzorgde voortuin kom je de woning binnen. In de hal bevinden zich de meterkast en een toilet. De ruime, uitgebouwde woonkamer is verrassend licht dankzij twee extra ramen en biedt volop plek voor zowel een royale zithoek als een grote eettafel. De airco zorgt hier voor een aangenaam binnenklimaat, ook op warme dagen. De gesloten keuken aan de voorzijde is voorzien van diverse inbouwapparatuur, waaronder een koelkast, heteluchtoven, combi-oven, 5-pits gaskookplaat en vaatwasser.

Eerste verdieping: overloop, een royale master bedroom, een tweede ruime slaapkamer aan de voorzijde en een derde kamer die ideaal is als kinder- of werkkamer. De badkamer is compleet uitgerust met een ligbad, inloopdouche, wastafelmeubel en tweede toilet.

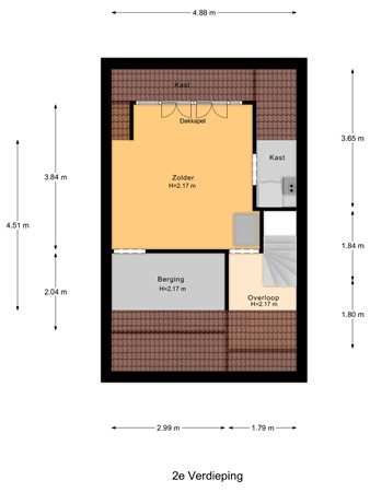
Tweede verdieping: royale zolder met dakkapel. Hier bevinden zich de stookruimte, aansluitingen voor wasapparatuur en een praktische vliering. Deze verdieping biedt volop mogelijkheden, bijvoorbeeld voor het realiseren van een vierde slaapkamer of een ruime thuiswerkplek.

Buitenleven
De zonnige, knusse tuin op het zuidoosten is een heerlijke plek om te genieten van rust en privacy. Er is een terras, volop groen, een stenen berging en een achterom. Direct grenzend aan een park, waardoor je het gevoel hebt buitenaf te wonen, maar toch dichtbij alle voorzieningen.

Kenmerken
• Bouwjaar 1989
• Perceeloppervlakte 110 m²
• Uitgebouwde woonkamer
• Geheel voorzien van dubbel glas
• Zolder met dakkapel en vliering
• 10 zonnepanelen
• Nabij scholen, park, winkels, sporthal, uitvalswegen en OV

Kortom: een instapklare, ruime woning met volop mogelijkheden, gelegen op een vrije en rustige plek in Zielhorst. Dé ideale gezinswoning!

Kaart

Kenmerken

Overdracht

Vraagprijs
€ 489.000,- k.k.
Status
Verkocht
Aanvaarding
In overleg
Aangeboden sinds
Donderdag 4 september 2025
Laatste wijziging
Donderdag 23 oktober 2025

Bouw

Type object
Eengezinswoning, woonhuis, tussenwoning
Soort bouw
Bestaande bouw
Bouwjaar
1989
Dakbedekking
Dakpannen
Type dak
Zadeldak
Isolatievormen
Dakisolatie
Dubbel glas
Muurisolatie
Vloerisolatie

Oppervlaktes en inhoud

Perceeloppervlakte
110 m²
Woonoppervlakte
113 m²
Inhoud
391 m³
Oppervlakte externe bergruimte
12 m²

Indeling

Aantal bouwlagen
4
Aantal kamers
5 (waarvan 4 slaapkamers)

Locatie

Ligging
Aan rustige weg
In woonwijk
Vrij uitzicht

Tuin

Type
Achtertuin
Hoofdtuin
Ja
Oriëntering
Zuidoost
Heeft een achterom
Ja
Staat
Normaal
Tuin 2 - Type
Achtertuin
Tuin 2 - Staat
Normaal
Tuin 3 - Type
Voortuin
Tuin 3 - Staat
Normaal

Energieverbruik

Energielabel
A

CV ketel

CV ketel
Intergas
Warmtebron
Gas
Bouwjaar
2014
Combiketel
Ja
Eigendom
Eigendom

Uitrusting

Warm water
CV-ketel
Verwarmingssysteem
Centrale verwarming
Badkamervoorzieningen
Inloopdouche
Ligbad
Toilet
Wastafelmeubel
Heeft airco
Ja
Heeft kabel-tv
Ja
Glasvezelaansluiting aanwezig
Ja
Tuin aanwezig
Ja
Heeft schuur/berging
Ja
Heeft zonwering
Ja
Heeft zonnecollectoren
Ja
Heeft ventilatie
Ja

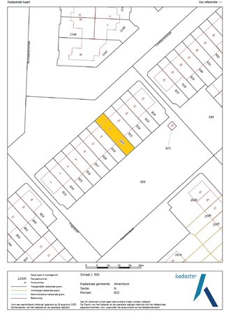
Kadastrale gegevens

Kadastrale aanduiding
Amersfoort N 820
Perceeloppervlakte
110 m²
Omvang
Geheel perceel
Eigendomsituatie
Eigen grond

Brochure(s) en overige bijlagen

brochure Download