Drenth Makelaars
Drenth Makelaars
Verkocht onder voorbehoud:Stephensonstraat 6, 3817 JC Amersfoort - Foto
Verkocht onder voorbehoud
+56

Stephensonstraat 6 3817 JC Amersfoort € 980.000,- k.k.

  • Woonhuis
  • 7 kamers
  • 6 slaapkamers
  • Bouwjaar 1935
  • 346 m² perceeloppervlakte
  • 146 m² gebruiksoppervlakte
  • F Energielabel F

Beschrijving

Charmante twee-onder-een-kapwoning op een absolute toplocatie in het Leusderkwartier

Aan één van de meest groene en ruim opgezette lanen van het geliefde Leusderkwartier staat deze karakteristieke twee-onder-een-kapwoning met eigen oprit, garage en een royale tuin. Een ideale woning voor wie houdt van jaren ’30 charme, authentieke details en de mogelijkheid om het huis naar eigen smaak te moderniseren.

Woning & karakter

De speelse geveldetails en royale dakoverstekken geven de woning, gebouwd in de jaren dertig, een onderscheidende uitstraling. In de woning zijn nog veel authentieke elementen aanwezig, waaronder de kamer-en-suite, erkers en andere karakteristieke details, bijvoorbeeld een schuifdeur tussen voor- en achterkamer met authentieke glas in lood ramen. De woning is technisch goed onderhouden. Er is een bouwtechnisch rapport beschikbaar waaruit geen grote gebreken naar voren komen.

Op de begane grond is aan de achterzijde een aangebouwde bijkeuken aanwezig, bereikbaar via de keuken.
Een groot pluspunt is de extra erker aan de zijkant, waardoor de leefruimte op de begane grond groter is dan bij veel vergelijkbare woningen. De woning beschikt over een diepe, groene tuin met veel privacy met een lange oprit langs het gehele huis naar een vrijstaande garage van ca. 6,5 x 3 meter. Het geheel staat op een royaal perceel van 346 m². Er kunnen op eigen terrein twee auto’s geparkeerd worden. Dit is belangrijk omdat de gemeente op afzienbare tijd in deze wijk betaald parkeren gaat invoeren.

Woonomgeving

Vanaf de woning kijk je fraai uit over het Laurens Costerplein. De Stephensonstraat staat bekend als een rustige, groene en ruim opgezette straat in het populaire Leusderkwartier. Alle voorzieningen liggen op loopafstand: supermarkten en speciaalzaken aan de Leusderweg, diverse scholen, kinderopvang, kerken en sportverenigingen. De ligging is ideaal ten opzichte van het centrum en uitvalswegen A1 en A28. Aan het einde van de straat begint bovendien het prachtige bosgebied Nimmerdor, dat doorloopt tot landgoed Den Treek.

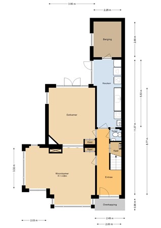
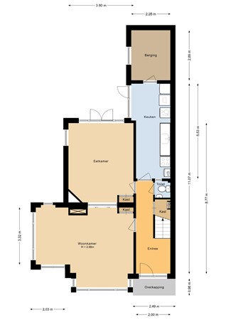
Indeling

Begane grond:

Deze bestaat uit een ruime hal, de trapopgang, een toilet en een trap-/kelderkast. Vanuit de hal bereik je de voorkamer, achterkamer en de keuken. Deze is voorzien van een eenvoudig keukenblok in wandopstelling en de moderne cv-opstelling. Aansluitend bevindt zich een bijkeuken. De kamer-en-suite vormt het hart van de begane grond. Aan de voorzijde ligt de voorkamer met open haard en rookkanaal en een erker aan zowel de voorzijde als
de zijkant, wat zorgt voor extra licht en een ruimtelijk gevoel. De achterkamer biedt via openslaande deuren toegang tot de tuin.

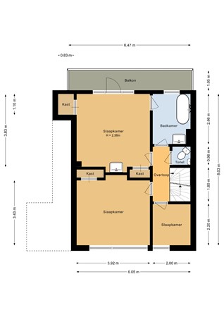
Eerste verdieping:

Op de eerste verdieping bevinden zich een overloop met een tweede toiletruimte, drie slaapkamers en een badkamer met bad en wastafel. Twee slaapkamers liggen aan de voorzijde; de slaapkamer aan de achterzijde beschikt over een balkon.

Tweede verdieping:

De tweede verdieping biedt nog eens twee slaapkamers en een ruime zolder. De slaapkamers zijn voorzien van een dakkapel. Boven een deel van de kamers bevindt zich bovendien een praktische bergzolder, bereikbaar via een losse trap vanaf de overloop.

Tuinen:

De woning beschikt over een riante achtertuin — een perfecte plek voor echte buitenliefhebbers. De tuin ligt op het zuidoosten, is circa 16 meter diep, en biedt daardoor de hele dag door fijne plekken in de zon. De tuin is aangelegd met twee terrassen aan de achterzijde, een gazon en borders aan de voorzijde, borders aan
de achterzijde met diverse planten en struiken. Dankzij de omliggende bomen is er veel privacy en een natuurlijke, groene sfeer. Achterin de tuin staat de vrijstaande garage van ca. 6,5 x 3 meter.

Een erg mooi en uniek gezinshuis met een vrije ligging in het zeer gewilde Leusderkwartier op een fraaie plek met uitzicht.

Kaart

Kenmerken

Overdracht

Referentienummer
00090/9717404
Vraagprijs
€ 980.000,- k.k.
Status
Verkocht onder voorbehoud
Aanvaarding
In overleg
Aangeboden sinds
Dinsdag 25 november 2025
Laatste wijziging
Woensdag 18 februari 2026

Bouw

Type object
Woonhuis, eengezinswoning, twee onder een kap woning
Soort bouw
Bestaande bouw
Bouwjaar
1935
Type dak
Samengesteld
Keurmerken
Bouwkundige keuring
Isolatievormen
Gedeeltelijk dubbel glas

Oppervlaktes en inhoud

Perceeloppervlakte
346 m²
Woonoppervlakte
146 m²
Inhoud
535 m³
Oppervlakte gebouwgebonden buitenruimte
9 m²

Indeling

Aantal bouwlagen
3
Aantal kamers
7 (waarvan 6 slaapkamers)

Locatie

Ligging
Aan rustige weg
In woonwijk
Vrij uitzicht

Tuin

Type
Achtertuin
Hoofdtuin
Ja
Heeft een achterom
Ja
Staat
Normaal

Energieverbruik

Energielabel
F

Uitrusting

Warm water
CV-ketel
Badkamervoorzieningen
Ligbad
Wastafel
Parkeergelegenheid
Vrijstaande stenen garage
Heeft een balkon
Ja
Heeft kabel-tv
Ja
Heeft een rookkanaal
Ja
Tuin aanwezig
Ja
Heeft een garage
Ja
Heeft schuur/berging
Ja
Heeft een dakraam
Ja

Brochure(s) en overige bijlagen