Drenth Makelaars
Drenth Makelaars
Verkocht onder voorbehoud:Spreeuwenstraat 137, 3815 SR Amersfoort - Foto
Verkocht onder voorbehoud
+35

Spreeuwenstraat 137 3815 SR Amersfoort € 398.000,- k.k.

  • Appartement
  • 5 kamers
  • 4 slaapkamers
  • Bouwjaar 1968
  • 111 m² gebruiksoppervlakte
  • D Energielabel D

Beschrijving

Modern en goed onderhouden 5-kamerappartement op de 7e woonlaag, met een zonnig op het zuidwesten gelegen balkon, vrij uitzicht richting het centrum van Amersfoort én voorzien van airconditioning. Het appartement is ruim opgezet en beschikt over een eigen berging op de begane grond.

Omgeving
Liendert is een populaire wijk onder starters op de Amersfoortse woningmarkt en biedt diverse voorzieningen, waaronder winkels, basisscholen, een wijkcentrum en een sporthal. Ook het vernieuwde zwem- en sportcomplex Amerena ligt aan de rand van de wijk.

Het appartement is fraai gerenoveerd en voldoet volledig aan de eisen van deze tijd. Een comfortabel en licht appartement waar u zonder verdere aanpassingen kunt wonen.
Op het voor het complex gelegen parkeerterrein is ruime parkeergelegenheid aanwezig. Aan de achterzijde van het complex ligt het waterwingebied, ingericht als park- en recreatiegebied en ideaal voor een ontspannen wandeling. In combinatie met de nabijheid van de historische binnenstad van Amersfoort – met winkels, pleinen, cafés en restaurants op circa vijf minuten fietsafstand – én de goede bereikbaarheid van uitvalswegen zoals de A28 en het openbaar vervoer om de hoek, maakt dit appartement extra aantrekkelijk.

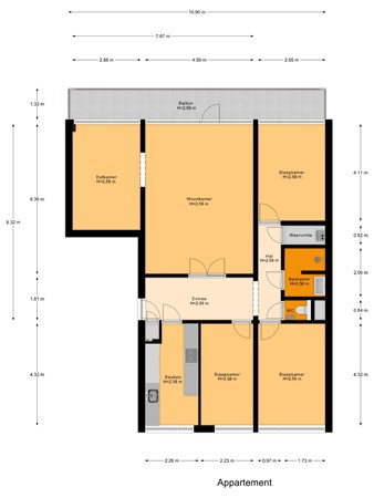
Indeling
Begane grond:
Afgesloten gezamenlijke entree (portiek) met hal, brievenbussen, lift en trapopgang. De berging op de begane grond is via een eigen toegang bereikbaar.

7e woonlaag:
portiek voor twee appartementen.

Appartement:
Entree met L-vormige gang voorzien van videofoon, meterkast en wasmachine-/stookkast. Via fraaie openslaande deuren bereikt u de ruime en lichte woonkamer met toegang tot het zonnige balkon, dat over de gehele breedte van het appartement is gelegen. De woonkamer is voorzien van airconditioning, wat zorgt voor extra comfort tijdens warme en koude dagen. Aangrenzend bevindt zich de eetkamer.

De gesloten keuken (2023) is voorzien van een moderne keukeninrichting met inductiekookplaat, heteluchtoven, recirculatiekap, koelkast, vriezer, vaatwasser en een close-in boiler (10 liter).

Verder beschikt het appartement over drie goed bemeten slaapkamers, waarvan één momenteel in gebruik is als kastenkamer. De gemoderniseerde badkamer (2023) is uitgevoerd met een inloopdouche en wastafelmeubel, elektrische radiator + wifi en verwarmde spiegel met verlichting. Het toilet is separaat en eveneens vernieuwd (2023). Het gehele appartement is afgewerkt met een fraaie laminaatvloer.

Balkon

Zonnig balkon over de volledige breedte van het appartement, waar u in de zomer tot laat in de avond van de ondergaande zon kunt genieten en voorzien van elektrisch bedienbare zonneschermen geplaatst over de gehele breedte van het balkon.

Kenmerken:
• Bouwjaar:1968
• Blokverwarming
• Airconditioning
• Boiler (eigendom)
• Dubbele beglazing
• Servicekosten: € 213 per maand
• Voorschot stookkosten en water: € 120,- per maand
• Radiatoren voorzien van thermostaatkranen
• Actieve en betrokken VvE

Kaart

Kenmerken

Overdracht

Referentienummer
00090/9601378
Vraagprijs
€ 398.000,- k.k.
Status
Verkocht onder voorbehoud
Aanvaarding
In overleg
Aangeboden sinds
Woensdag 22 oktober 2025
Laatste wijziging
Dinsdag 3 maart 2026

Bouw

Type object
Appartement, portiekflat
Woonlaag
7e woonlaag
Soort bouw
Bestaande bouw
Bouwjaar
1968
Type dak
Platdak
Isolatievormen
Dubbel glas

Oppervlaktes en inhoud

Woonoppervlakte
111 m²
Inhoud
350 m³
Oppervlakte gebouwgebonden buitenruimte
14 m²

Indeling

Aantal bouwlagen
1
Aantal kamers
5 (waarvan 4 slaapkamers)

Locatie

Ligging
Aan rustige weg
In woonwijk
Vrij uitzicht

Energieverbruik

Energielabel
D

Uitrusting

Warm water
Elektrische boiler
Badkamervoorzieningen
Inloopdouche
Wastafelmeubel
Heeft airco
Ja
Heeft een balkon
Ja
Heeft kabel-tv
Ja
Heeft een lift
Ja
Heeft schuur/berging
Ja
Heeft zonwering
Ja

Brochure(s) en overige bijlagen