Drenth Makelaars
Drenth Makelaars
Verkocht:Rigolettostraat 3, 3816 TR Amersfoort - Foto
Verkocht
+47

Rigolettostraat 3 3816 TR Amersfoort

  • Woonhuis
  • 6 kamers
  • 4 slaapkamers
  • Bouwjaar 1971
  • 287 m² perceeloppervlakte
  • 143 m² gebruiksoppervlakte
  • E Energielabel E

Beschrijving

Ruimte, rust en groen wonen aan de Rigolettostraat 3 in Amersfoort

Ben jij op zoek naar een royale twee-onder-een-kapwoning met een oprit, garage, zonnige tuin én maar liefst vijf kamers? Dan is Rigolettostraat 3 precies wat je zoekt!

Deze woning biedt verrassend veel ruimte. De royale leefruimte op de begane grond vormt het hart van het huis, terwijl de vier volwaardige slaapkamers én aparte werkkamer zorgen voor volop mogelijkheden voor een groot gezin, hobby’s of thuiswerken. Een echte gezinswoning dus, waar je met gemak jarenlang kunt blijven wonen. Niet voor niets hebben de huidige eigenaren hier maar liefst 52 jaar met veel plezier gewoond.

Na al die jaren is de woning op punten gedateerd. Dit geeft jou als nieuwe eigenaar juist de kans om het huis helemaal naar eigen smaak en inzicht te moderniseren. De basis is goed – het huis is degelijk gebouwd en voorzien van kunststof kozijnen met HR-glas (vervangen in 2011) – maar qua afwerking is er ruimte voor vernieuwing. Een mooie kans om er jouw eigen fijne thuis van te maken.

Woonomgeving

De Rigolettostraat is een rustige, groene straat in een kindvriendelijke wijk. Op loopafstand vind je winkelcentrum Euterpeplein en de Groengordel van Schuilenburg. Aan de overkant van het water liggen een speeltuin en wijkcentrum. Basisscholen en een Vrije School zijn eveneens in de buurt. Met buslijn 8 ben je in 10 minuten in het centrum of op het station. Een ideale plek voor gezinnen!

Indeling

Begane grond

Via de zijentree betreed je de woning. De hal biedt toegang tot de meterkast, een handige voorraadkast en het toilet. De lichte woonkamer is voorzien van een sfeervolle gashaard en schuifpui naar de tuin. De halfopen keuken in L-opstelling maakt de begane grond compleet.

Eerste verdieping

De overloop geeft toegang tot drie ruime slaapkamers, die je naar wens kunt inrichten als slaap-, werk- of hobbykamer. De badkamer is uitgerust met een douche, wastafelmeubel en tweede toilet.

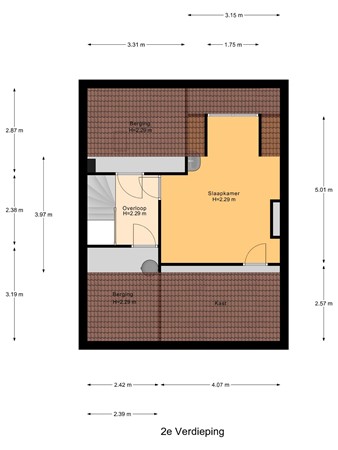
Tweede verdieping

Een verrassend ruime verdieping met overloop, stookruimte, een kleine kamer met dakraam en een grote slaapkamer met dakkapel en veel bergruimte. Ook ideaal als logeerkamer of thuiswerkplek.

Tuin en garage

De brede achtertuin ligt gunstig voor de zon – een heerlijke plek om de dag buiten door te brengen. Via de achterom, naast de garage, bereik je de tuin gemakkelijk met fiets of afvalcontainer. De ruime oprit aan de voorzijde biedt plek voor twee auto's. De aangebouwde garage van circa 22 m² is voorzien van elektra en biedt volop ruimte voor opslag, klussen of het stallen van een auto.

Kaart

Kenmerken

Overdracht

Referentienummer
00090/8876957
Vraagprijs
€ 629.000,- k.k.
Status
Verkocht
Aanvaarding
In overleg
Aangeboden sinds
Vrijdag 7 maart 2025
Laatste wijziging
Maandag 28 juli 2025

Bouw

Type object
Woonhuis, eengezinswoning, twee onder een kap woning
Soort bouw
Bestaande bouw
Bouwjaar
1971
Type dak
Zadeldak
Keurmerken
Bouwkundige keuring

Oppervlaktes en inhoud

Perceeloppervlakte
287 m²
Woonoppervlakte
143 m²
Inhoud
581 m³
Oppervlakte gebouwgebonden buitenruimte
6 m²

Indeling

Aantal bouwlagen
3
Aantal kamers
6 (waarvan 4 slaapkamers)

Locatie

Ligging
Aan rustige weg
In woonwijk

Tuin

Type
Achtertuin
Hoofdtuin
Ja
Heeft een achterom
Ja
Staat
Normaal

Energieverbruik

Energielabel
E

Uitrusting

Badkamervoorzieningen
Douche
Toilet
Parkeergelegenheid
Aangebouwde stenen garage
Heeft kabel-tv
Ja
Tuin aanwezig
Ja
Heeft een garage
Ja
Heeft een dakraam
Ja
Heeft een schuifpui
Ja

Brochure(s) en overige bijlagen