Verkocht onder voorbehoud:Paukenpad 95, 3822 DC Amersfoort - Foto
Verkocht onder voorbehoud
+40

Paukenpad 95 3822 DC Amersfoort € 475.000,- k.k.

  • Eengezinswoning
  • 5 kamers
  • 4 slaapkamers
  • Bouwjaar 1989
  • 123 m² perceeloppervlakte
  • 106 m² gebruiksoppervlakte
  • A Energielabel A

Beschrijving

Ben je op zoek naar een fijn gezinshuis in een rustige en kindvriendelijke omgeving met een keurige keuken, 4 slaapkamers, vloerverwarming op de begane grond, zonnepanelen en een flinke tuin op het zuiden/westen
Dan wil je dit fijne huis aan Paukenpad 95 absoluut komen bezichtigen!

Woonomgeving:
De ligging in de wijk Zielhorst is uitermate gunstig. Kindvriendelijk door de autoloze straat (alleen de eigen auto’s zijn welkom), de nabijgelegen speeltuinen en scholen. Op loop- en fietsafstand van winkelcentrum Emiclaer, het mooie park Schothorst, NS-station Schothorst, een gezondheidscentrum en diverse sportverenigingen. De historische en bruisende binnenstad van Amersfoort met al zijn moderne voorzieningen is met de fiets binnen 15 minuten bereikbaar. Op één minuut loopafstand bevindt zich een busverbinding naar het centrum. Met de auto zit je via de uitvalswegen zo op de A1 en A28.

Indeling:
Begane grond:
Hal met toiletruimte, meterkast en trapopgang. Lichte, tuingerichte woonkamer met trapkast en deur naar de tuin. Aan de voorzijde ligt de halfopen keuken, voorzien van diverse inbouwapparatuur: De begane grond is voorzien van vloerverwarming.

Tuin:
De achtertuin ligt op het zonnige zuid en is omringd door veel groen. De tuin is betegeld en voorzien van een sfeervol tuinhuis. Net als de stenen berging in de voortuin is deze uitgerust met elektra.

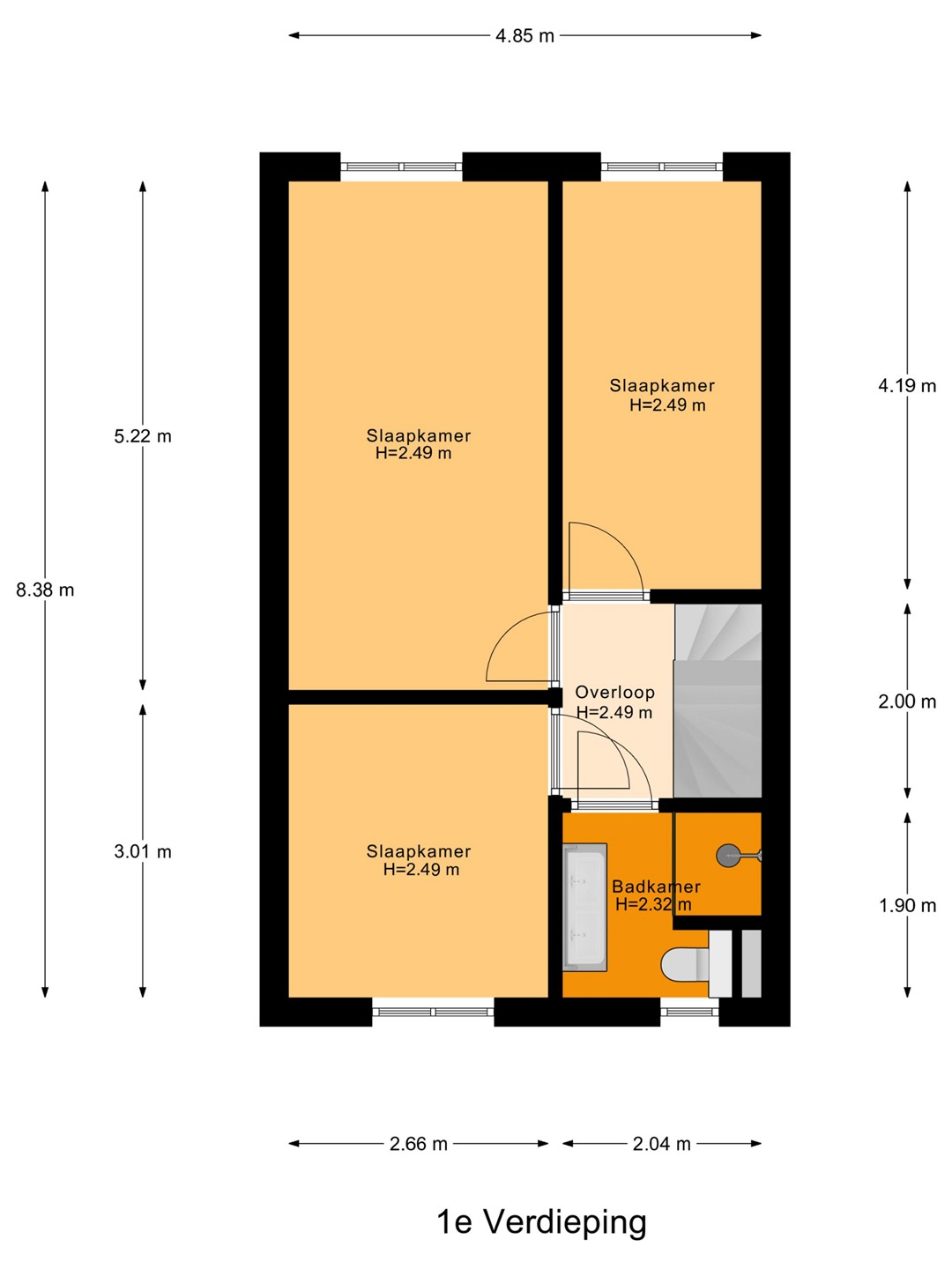
Eerste verdieping:
Overloop. Aan de achterzijde bevinden zich twee royale slaapkamers. De derde slaapkamer ligt aan de voorzijde. De badkamer beschikt over een douche, toilet en een dubbele wastafel.

Tweede verdieping:
Een vaste trap brengt je naar de tweede verdieping. Hier vind je een ruime voorzolder met wasmachineaansluiting, de CV-opstelling en nog een ruime slaapkamer. Dankzij de aanwezige dakkapel is dit een volwaardige verdieping. Door de knieschotten op zowel de voorzolder als in de slaapkamer is er veel extra opbergruimte gerealiseerd.

Kortom: een fijne gezinswoning met vloerverwarming, keurige keuken, complete badkamer en een zonnige tuin in een groene wijk voorzien van alle voorzieningen!

Kenmerken:
- -Gelegen in de kindvriendelijke wijk Zielhorst
- Autoluwe straat met speeltuinen en scholen op korte afstand
- Voorzien van zonnepanelen
- Maar liefst 4 slaapkamers, waaronder een zolderkamer met dakkapel
- Lichte, tuingerichte woonkamer met comfortabele vloerverwarming
- Keurige halfopen keuken met diverse inbouwapparatuur
- Zonnige achtertuin op het zuiden/westen met tuinhuis en stenen berging
- Op loop- en fietsafstand van winkelcentrum Emiclaer, park Schothorst en NS-station Schothorst

Kaart

Kenmerken

Overdracht

Vraagprijs
€ 475.000,- k.k.
Status
Verkocht onder voorbehoud
Aanvaarding
In overleg
Aangeboden sinds
Dinsdag 7 oktober 2025
Laatste wijziging
Maandag 27 oktober 2025

Bouw

Type object
Eengezinswoning, woonhuis, tussenwoning
Soort bouw
Bestaande bouw
Bouwjaar
1989
Dakbedekking
Dakpannen
Type dak
Zadeldak
Isolatievormen
Dakisolatie
Dubbel glas
Muurisolatie
Vloerisolatie

Oppervlaktes en inhoud

Perceeloppervlakte
123 m²
Woonoppervlakte
106 m²
Inhoud
388 m³
Oppervlakte overige inpandige ruimten
6 m²
Oppervlakte externe bergruimte
17 m²

Indeling

Aantal bouwlagen
3
Aantal kamers
5 (waarvan 4 slaapkamers)

Locatie

Ligging
Aan rustige weg
In woonwijk

Tuin

Type
Achtertuin
Hoofdtuin
Ja
Oriëntering
Zuid-west
Staat
Normaal
Tuin 2 - Type
Achtertuin
Tuin 2 - Staat
Normaal
Tuin 3 - Type
Voortuin
Tuin 3 - Staat
Normaal

Energieverbruik

Energielabel
A

CV ketel

CV ketel
Intergas
Warmtebron
Gas
Combiketel
Ja
Eigendom
Eigendom

Uitrusting

Warm water
CV-ketel
Verwarmingssysteem
Centrale verwarming
Badkamervoorzieningen
Douche
Dubbele wastafel
Toilet
Heeft kabel-tv
Ja
Glasvezelaansluiting aanwezig
Ja
Tuin aanwezig
Ja
Heeft schuur/berging
Ja
Heeft een dakraam
Ja
Heeft zonwering
Ja
Heeft zonnecollectoren
Ja
Heeft ventilatie
Ja

Kadastrale gegevens

Kadastrale aanduiding
Amersfoort N 2110
Perceeloppervlakte
123 m²
Omvang
Geheel perceel
Eigendomsituatie
Eigen grond

Brochure(s) en overige bijlagen

brochure Download