Drenth Makelaars
Drenth Makelaars
Verkocht onder voorbehoud:Operaweg 24, 3816 ED Amersfoort - Foto
Verkocht onder voorbehoud
+63

Operaweg 24 3816 ED Amersfoort € 565.000,- k.k.

  • Eengezinswoning
  • 5 kamers
  • 4 slaapkamers
  • Bouwjaar 2017
  • 105 m² perceeloppervlakte
  • 124 m² gebruiksoppervlakte
  • A Energielabel A

Beschrijving

Ruime en duurzame eengezinswoning met fijne tuin in Amersfoort – Operaweg 24

Ben je op zoek naar een jonge, instapklare woning met veel ruimte én gebouwd met oog voor duurzaamheid? Dan is deze moderne eengezinswoning aan de Operaweg 24, gebouwd in 2017, absoluut het bekijken waard.

De woning beschikt over energielabel A, wat garant staat voor lage energielasten en een comfortabel binnenklimaat. Dankzij de traditionele bouw met woningscheidende spouwmuren woon je hier degelijk en comfortabel. De buitenkozijnen zijn in 2025 geschilderd, wat bijdraagt aan de verzorgde en goed onderhouden uitstraling van de woning. Daarnaast is er een airco aanwezig die zowel kan verkoelen als verwarmen, wat extra comfort biedt in alle seizoenen.

Woonomgeving
De ligging is ideaal: op korte afstand van het historische centrum van Amersfoort en nabij de uitvalswegen A1 en A28. Binnen enkele minuten sta je bovendien in de natuur, zoals op landgoed Den Treek in Leusden of in het nabijgelegen Park Randenbroek. Ook winkels en dagelijkse voorzieningen zijn op loopafstand aanwezig.

Indeling

Begane grond
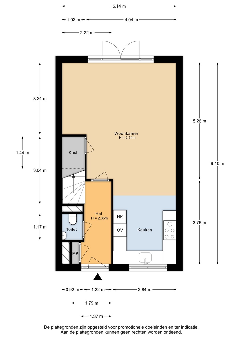
Entree met meterkast en toiletruimte. De lichte, tuingerichte woonkamer is voorzien van vloerverwarming, een praktische trapkast en openslaande deuren naar de achtertuin. De gehele begane grond is afgewerkt met een PVC vloer.

Aan de voorzijde bevindt zich de open keuken in U-opstelling, uitgerust met luxe Siemens keukenapparatuur, waaronder een koelkast, vriezer, oven, magnetron, vaatwasser en een 5-pits gaskookplaat. De voorbereiding voor het aansluiten van een elektrische kookplaat is reeds uitgevoerd, waardoor overstappen op elektrisch koken eenvoudig mogelijk is.

Eerste verdieping
Overloop met toegang tot drie slaapkamers van goed formaat. De badkamer beschikt over een toilet, douche en wastafelmeubel. Het raam zorgt hier voor prettig daglicht en natuurlijke ventilatie. De gehele verdieping is afgewerkt met een mooie laminaatvloer.

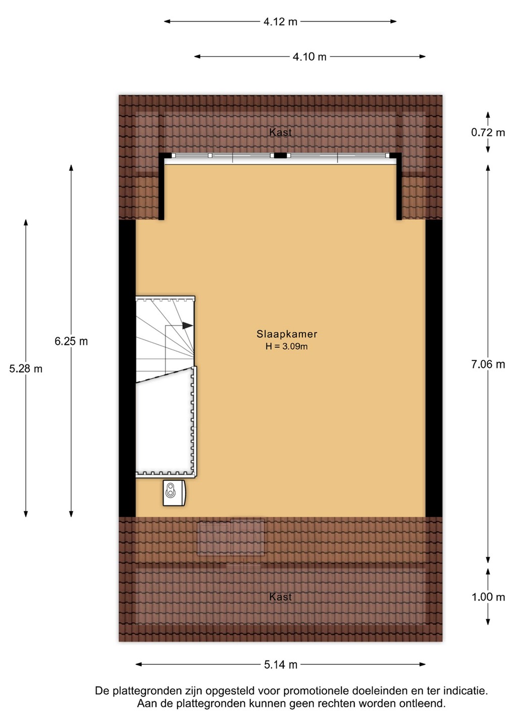
Tweede verdieping
Via een vaste trap bereik je de ruime open zolder met dakkapel, momenteel in gebruik als gecombineerde slaap- en werkruimte. Indien gewenst is hier eenvoudig de mogelijkheid om nog twee volwaardige slaapkamers te realiseren. Ook bevindt zich hier de stookruimte met de Intergas combi-ketel (2017).

Tuin
De verzorgde achtertuin ligt op het oosten, is bereikbaar via de openslaande deuren en beschikt over een ruime berging. Aan de achterzijde grenst de tuin aan een parkeerterrein, waardoor parkeren altijd dichtbij mogelijk is.

Pluspunten op een rij:
• Jonge en duurzame woning (bouwjaar 2017)
• Instapklaar en zeer goed onderhouden
• Volledig geïsoleerd en energielabel A
• Traditionele bouw met woningscheidende spouwmuren
• Tuingerichte woonkamer met vloerverwarming en openslaande deuren
• Achtertuin op het oosten met ruime berging, grenzend aan parkeerterrein
• Mogelijkheid tot vijf slaapkamers door uitbreiding op zolder
• Centrale ligging nabij centrum Amersfoort, Park Randenbroek, winkels en natuurgebied Den Treek

Kortom: Operaweg 24 is een moderne, energiezuinige woning die ruimte, comfort en een uitstekende ligging combineert. Een ideale kans voor wie op zoek is naar een toekomstbestendige woonplek in Amersfoort waar je zo in kunt trekken.

Kaart

Kenmerken

Overdracht

Vraagprijs
€ 565.000,- k.k.
Status
Verkocht onder voorbehoud
Aanvaarding
In overleg
Aangeboden sinds
Donderdag 19 maart 2026
Laatste wijziging
Vrijdag 3 april 2026

Bouw

Type object
Eengezinswoning, woonhuis, tussenwoning
Soort bouw
Bestaande bouw
Bouwjaar
2017
Dakbedekking
Dakpannen
Type dak
Zadeldak
Isolatievormen
Dakisolatie
Muurisolatie
Vloerisolatie

Oppervlaktes en inhoud

Perceeloppervlakte
105 m²
Woonoppervlakte
124 m²
Inhoud
453 m³
Oppervlakte externe bergruimte
7 m²

Indeling

Aantal bouwlagen
3
Aantal kamers
5 (waarvan 4 slaapkamers)

Locatie

Ligging
In woonwijk

Tuin

Type
Achtertuin
Hoofdtuin
Ja
Heeft een achterom
Ja
Staat
Normaal
Tuin 2 - Type
Achtertuin
Tuin 2 - Staat
Normaal
Tuin 3 - Type
Voortuin
Tuin 3 - Staat
Normaal

Energieverbruik

Energielabel
A

CV ketel

CV ketel
Intergas HR
Warmtebron
Gas
Combiketel
Ja
Eigendom
Eigendom

Uitrusting

Warm water
CV-ketel
Verwarmingssysteem
Centrale verwarming
Vloerverwarming (gedeeltelijk)
Badkamervoorzieningen
Douche
Toilet
Wastafelmeubel
Heeft airco
Ja
Heeft kabel-tv
Ja
Glasvezelaansluiting aanwezig
Ja
Tuin aanwezig
Ja
Heeft rolluiken
Ja
Heeft schuur/berging
Ja
Heeft ventilatie
Ja

Kadastrale gegevens

Kadastrale aanduiding
Amersfoort A 8058
Perceeloppervlakte
105 m²
Omvang
Geheel perceel
Eigendomsituatie
Eigen grond

Brochure(s) en overige bijlagen

brochure Download