Verkocht onder voorbehoud:Nieuwstraat 30, 3811 JZ Amersfoort - Foto
Verkocht onder voorbehoud
+69

Nieuwstraat 30 3811 JZ Amersfoort € 1.165.000,- k.k.

  • Woonhuis
  • 8 kamers
  • 5 slaapkamers
  • Bouwjaar 1990
  • 98 m² perceeloppervlakte
  • 265 m² gebruiksoppervlakte
  • C Energielabel C

Beschrijving

Royale stadswoning met lift, twee garages en unieke mogelijkheden in de binnenstad van Amersfoort

Op zoek naar iets bijzonders? Deze royale stadswoning met lift, inpandige garage én een tweede garagebox in de directe nabijheid biedt een unieke kans midden in de historische binnenstad van Amersfoort. De woning maakt deel uit van een kleinschalig project van vier architectonische panden, elk met een geheel eigen karakter en uitstraling.

De woning vormt een solide basis, maar vraagt om vernieuwing en een frisse blik. Juist dát maakt het interessant voor kopers die de indeling en uitstraling naar eigen wens willen moderniseren. Dankzij het royale woonoppervlak en de praktische indeling zijn er volop mogelijkheden, zoals het combineren van wonen en werken of – na toestemming van de gemeente – het realiseren van dubbele bewoning.
Daarnaast zijn er talloze andere gebruiksmogelijkheden denkbaar, van atelier of praktijkruimte tot een royaal familiehuis met volop leefruimte.

Een verrassend element is de royale souterrain met daglichttoetreding en stahoogte, die voor uiteenlopende doeleinden te gebruiken is. Alle verdiepingen zijn bovendien bereikbaar per lift, wat het wooncomfort vergroot.

Indeling

Begane grond

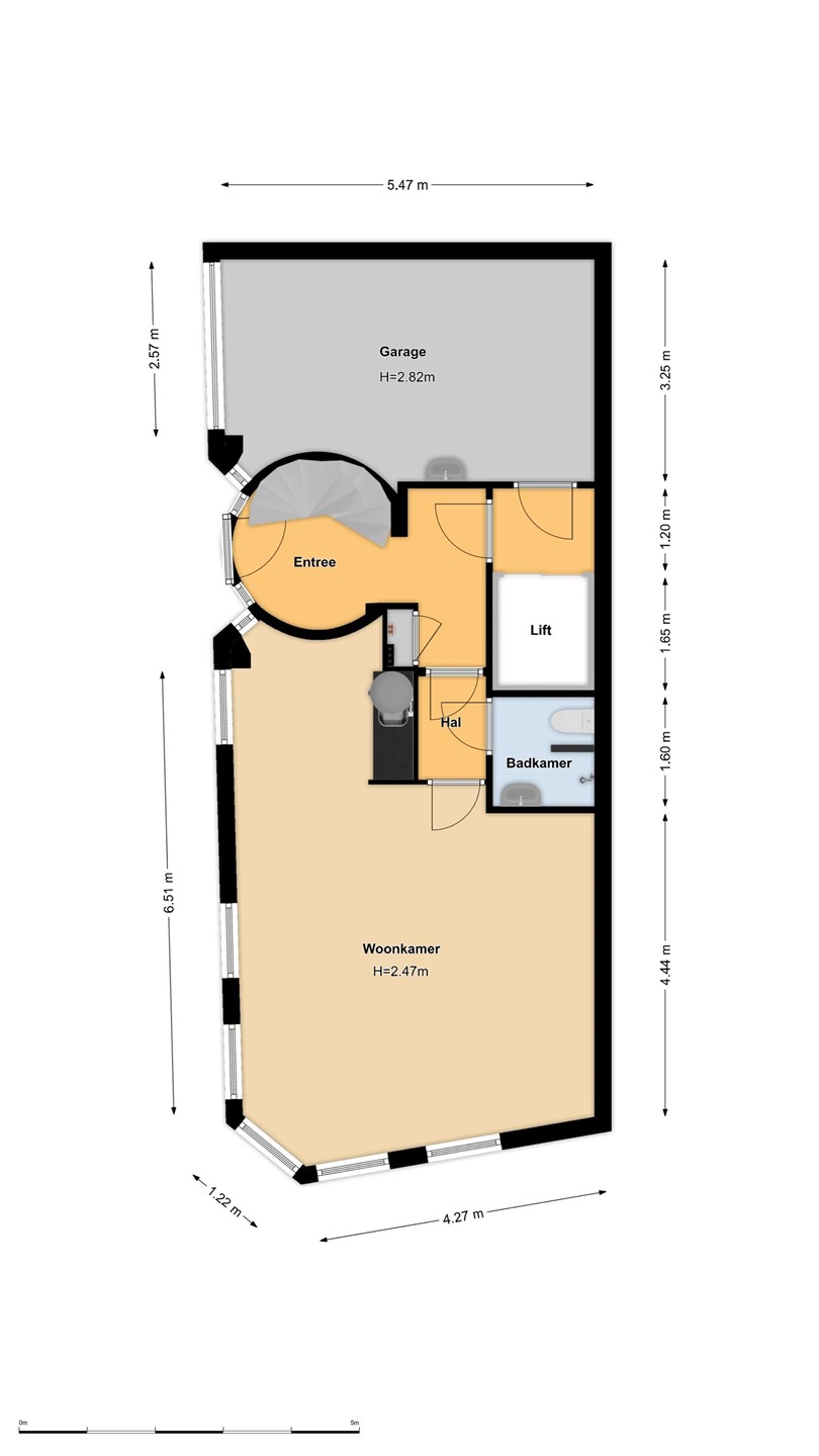
Entree met trapopgang naar kelder en verdieping. Hal met garderobe en meterkast. Badkamer met toilet, wastafel en douche. De ruime kamer aan de voorzijde met veel lichtinval beschikt ook over een pantry. Vanuit de tussenhal zijn de lift en de inpandige garage (ca. 5,30 x 3,30 m) bereikbaar. De garage is voorzien van wasmachineaansluiting, elektrische deur, elektra en water.

Eerste verdieping

Overloop, separate toiletruimte, vier slaapkamers en een tweede badkamer met douche, wastafel en wasmachineaansluiting.

Tweede verdieping

Een ruime woonkamer biedt prachtig uitzicht en veel licht en heeft een zonnig balkon en open keuken in L-opstelling met inbouwapparatuur. Daarnaast een portaal met lift, separaat toilet, extra slaapkamer en aansluitend een badkamer met ligbad en wastafelmeubel.

Souterrain

Zeer ruim souterrain met daglichttoetreding en volop mogelijkheden voor gebruik als hobby-, werk- of opslagruimte. Vanuit het souterrain is er toegang tot een gang die ook in gebruik is bij de naastgelegen woningen. Via deze gang bereik je het achtergelegen terrein met meerdere garageboxen.

Buitenruimte en parkeren

De woning beschikt over twee garages: een inpandige garage op de begane grond én een separate garagebox op het achtergelegen terrein.
Bij de woning hoort de meest linkse garagebox (ca. 6,00 x 2,95 m), voorzien van vliering, elektra en elektrische deur.

Woonomgeving

De woning ligt aan de rustige Nieuwstraat, in het hart van de historische binnenstad.
Hier woon je op loopafstand van alle hotspots: de sfeervolle winkelstraatjes, de terrassen op De Hof, het Lieve Vrouwenplein, de iconische Koppelpoort en het groene Plantsoen-Noord voor de dagelijkse wandeling.

Bijzonderheden

-Unieke stadswoning op een bijzondere locatie in de binnenstad

-Voorzien van lift en inpandige garage

-Inclusief tweede garagebox met vliering, elektra en elektrische deur

-Royal souterrain met daglicht en stahoogte

-Mogelijkheden voor dubbele bewoning (navraag bij gemeente noodzakelijk)

-Geschikt voor wonen en werken, atelier of praktijkruimte

-Woonoppervlak met veel indelingsmogelijkheden

Disclaimer
Koper dient zelf bij de gemeente te informeren naar de mogelijkheden voor gebruik, verbouwing en/of functiewijziging van de woning.

Kaart

Kenmerken

Overdracht

Referentienummer
00090/9380222
Vraagprijs
€ 1.165.000,- k.k.
Status
Verkocht onder voorbehoud
Aanvaarding
In overleg
Aangeboden sinds
Dinsdag 19 augustus 2025
Laatste wijziging
Maandag 8 december 2025

Bouw

Type object
Woonhuis, eengezinswoning, hoekwoning
Soort bouw
Bestaande bouw
Bouwjaar
1990
Type dak
Samengesteld
Keurmerken
Bouwkundige keuring
Isolatievormen
Dakisolatie
Dubbel glas
Muurisolatie
Vloerisolatie

Oppervlaktes en inhoud

Perceeloppervlakte
98 m²
Woonoppervlakte
265 m²
Inhoud
963 m³
Oppervlakte gebouwgebonden buitenruimte
4 m²

Indeling

Aantal bouwlagen
3 (en 1 kelder)
Aantal kamers
8 (waarvan 5 slaapkamers)

Locatie

Ligging
Aan rustige weg
In centrum

Energieverbruik

Energielabel
C

Uitrusting

Warm water
CV-ketel
Elektrische boiler
Badkamervoorzieningen Badkamer 1
Douche
Toilet
Wastafel
Badkamervoorzieningen Badkamer 2
Douche
Toilet
Wastafel
Badkamervoorzieningen Badkamer 3
Ligbad
Wastafelmeubel
Parkeergelegenheid
Vrijstaande stenen garage
Heeft een balkon
Ja
Heeft kabel-tv
Ja
Heeft een lift
Ja
Heeft een garage
Ja
Heeft ventilatie
Ja

Brochure(s) en overige bijlagen