Drenth Makelaars
Drenth Makelaars
Koop:Mooierstraat 39, 3811 EB Amersfoort - Foto
+38

Mooierstraat 39 3811 EB Amersfoort € 500.000,- k.k.

  • Appartement
  • 4 kamers
  • 3 slaapkamers
  • Bouwjaar 1999
  • 88 m² gebruiksoppervlakte
  • A Energielabel A

Beschrijving

Comfortabel wonen in het hart van de binnenstad, met een ondergrondse privé parkeerplaats en cafés, terrassen en winkels direct om de hoek.

Welkom aan de Mooierstraat 39! Achter één van de kleurrijke gevels aan de Mooierstraat vind je deze unieke maisonnettewoning.

De woning biedt drie woonlagen met samen bijna 95 m2 aan woonplezier.

Woonomgeving:

De Mooierstraat 39 is gelegen aan een rustig pleintje met in de straat een klein aantal winkels en aan de straateinden lunchrooms, verscholen achter de Langestraat en Kortegracht. Midden in de binnenstad! Waar je thuis geniet van de rust en ruimte, ligt de sfeervolle winkelstraat letterlijk om de hoek en de gezellige terrassen van de Hof en het Lieve Vrouwekerkhof voelen als je achtertuin. Vanuit de parkeergarage ben je met de auto de binnenstad zo weer uit en ook het Centraal Station is eenvoudig te bereiken. Nieuwsgierig? Laat ons je meer vertellen

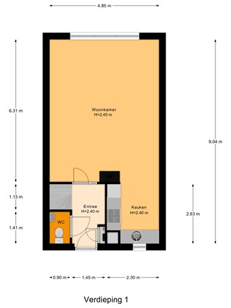
Indeling:

Via het afgesloten portiek met intercom bereikt u de verzorgde centrale hal met trapopgang en fietsenstalling.
De entree van de woning bevindt zich op de eerste verdieping. Hier vindt u een hal met toiletruimte, een lichte woonkamer en een halfopen keuken met diverse inbouwapparatuur.

Op de tweede verdieping liggen twee ruime slaapkamers, waarvan één met toegang tot een zonnig terras op het zuidoosten. De badkamer is compleet uitgerust met ligbad, douchecabine, tweede toilet en wastafel. Daarnaast is er een praktische was-/stookruimte.

Een vaste trap leidt naar de royale zolderverdieping met bergruimte, een derde kamer of werkruimte met 2 grote dakramen.

Bij de woning op nummer 39 hoort een eigen berging in de kelder van het complex.

Ook vind je hier de privé parkeerplaats. Voor de fietsen is er naast een eigen berging, ook een gezamenlijke fietsenberging beschikbaar.

Bijzonderheden:

- Bouwjaar: 1999
- Eigen berging
- Lift aanwezig
- Privé parkeerplaats (pp 25)
- Maandelijkse VvE-bijdrage: €212,03
- Maandelijkse bijdrage parkeerkelder: € 46,99
- Oplevering: in overleg

Kortom: comfortabel en sfeervol wonen op een unieke locatie in de historische binnenstad van Amersfoort! Interesse? Kom dan eens langs voor een bezichtiging!

Kaart

Kenmerken

Overdracht

Vraagprijs
€ 500.000,- k.k.
Servicekosten
€ 259,02
Aanvaarding
In overleg
Aangeboden sinds
Vrijdag 9 januari 2026
Laatste wijziging
Vrijdag 24 april 2026

Bouw

Type object
Appartement, maisonnette
Woonlaag
1e woonlaag
Soort bouw
Bestaande bouw
Bouwjaar
1999
Type dak
Zadeldak
Isolatievormen
Dakisolatie
Dubbel glas
Muurisolatie

Oppervlaktes en inhoud

Woonoppervlakte
88 m²
Inhoud
284 m³
Oppervlakte externe bergruimte
6 m²
Oppervlakte gebouwgebonden buitenruimte
9 m²

Indeling

Aantal bouwlagen
3
Aantal kamers
4 (waarvan 3 slaapkamers)

Locatie

Ligging
Aan rustige weg
In centrum

Energieverbruik

Energielabel
A

CV ketel

CV ketel
Intergas HRE
Warmtebron
Gas
Bouwjaar
2015
Combiketel
Ja
Eigendom
Eigendom

Uitrusting

Warm water
CV-ketel
Verwarmingssysteem
Centrale verwarming
Badkamervoorzieningen
Douche
Ligbad
Toilet
Wastafel
Heeft een balkon
Ja
Heeft kabel-tv
Ja
Heeft een lift
Ja
Heeft een frans balkon
Ja
Glasvezelaansluiting aanwezig
Ja
Heeft een parkeerplaats
Ja
Heeft schuur/berging
Ja
Heeft een dakraam
Ja
Heeft ventilatie
Ja

Vereniging van Eigenaren

Ingeschreven bij de KvK
Ja
Jaarlijkse vergadering
Ja
Periodieke bijdrage
Ja
Reservefonds
Ja
Onderhoudsverwachting
Ja
Opstal verzekering
Ja

Kadastrale gegevens

Kadastrale aanduiding
Amersfoort E 8511
Omvang
Appartementsrecht of complex
Eigendomsituatie
Eigen grond
Indexnummer
93

Brochure(s) en overige bijlagen

brochure Download
brochure Download