Drenth Makelaars
Drenth Makelaars
Verkocht:Mélisandepad 22, 3816 RM Amersfoort - Foto
Verkocht
+36

Mélisandepad 22 3816 RM Amersfoort

  • Eengezinswoning
  • 5 kamers
  • 4 slaapkamers
  • Bouwjaar 1968
  • 140 m² perceeloppervlakte
  • 116 m² gebruiksoppervlakte
  • B Energielabel B

Beschrijving

Ben je op zoek naar een ruime en complete gezinswoning in een fijne en kindvriendelijke woonomgeving? Dan is het Melisandepad 22 in Amersfoort absoluut een woning om te ontdekken. Deze tussenwoning combineert comfort en praktische leefruimte met een ideale ligging. Met vier slaapkamers, een lichte woonkamer met open keuken en een diepe zonnige tuin is dit een huis waar je jarenlang met plezier kunt wonen.

Omgeving
De woning ligt in een kindvriendelijke en groene woonomgeving. Op korte afstand bevinden zich de winkelcentra aan het Euterpeplein en het Operaplein, waar je terecht kunt voor de dagelijkse boodschappen, speciaalzaken en horeca. Voor sport en ontspanning ligt het moderne zwembad en sportcomplex De Amerena om de hoek.
Scholen en kinderopvang zijn in de nabije omgeving ruim aanwezig, waardoor dit een ideale plek is voor gezinnen. Ook de bereikbaarheid is uitstekend: met de fiets sta je in een paar minuten in de binnenstad van Amersfoort of op station Schothorst, en met de auto zijn de uitvalswegen richting de A1 en A28 vlot bereikbaar. Daarnaast zijn er volop speelplekken en veldjes in de wijk, waardoor kinderen hier veilig en met plezier kunnen opgroeien. Kortom, een heerlijke buurt waar alles binnen handbereik is.

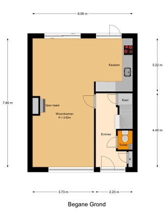
Indeling
Entree, hal met meterkast, toilet met fontein en trapkast. Via de trapopgang zijn de verdiepingen bereikbaar. De lichte woonkamer heeft grote raampartijen, een sfeervolle houtkachel en een open verbinding met de keuken. De keuken beschikt over diverse inbouwapparatuur, waaronder een vaatwasser, koelkast, vriezer, inductiekookplaat, combi-oven en een heteluchtoven. Het schiereiland geeft een speels en praktisch effect en via de keuken is er toegang tot de tuin.

De achtertuin is diep en gunstig gelegen op het zuid/zuid-oosten. Hier kun je volop van de zon genieten. Achterin de tuin bevindt zich een stenen berging met elektra en een achterom.

Eerste verdieping
Overloop met toegang tot drie slaapkamers. De badkamer is voorzien van een inloopdouche, dubbele wastafel, toilet, een granitovloer en daglichttoetreding.

Tweede verdieping
Via een vaste trap kom je op de overloop met de wasopstelling en de cv-ketel (2018). Daarnaast is hier een vierde slaapkamer aanwezig, voorzien van een dakkapel.

Benieuwd of dit jouw nieuwe thuis kan worden? Maak snel een afspraak voor een bezichtiging en ervaar zelf de ruimte, de lichtinval en de fijne ligging van deze woning!

Kenmerken:
• Ruime gezinswoning met vier slaapkamers
• Lichte woonkamer met houtkachel en open keuken
• Complete keuken met inbouwapparatuur
• Diepe achtertuin op het zuid/zuid-oosten met berging en achterom
• Badkamer met inloopdouche, dubbele wastafel en tweede toilet
• Vierde slaapkamer op zolder met dakkapel
• Cv-ketel uit 2018 en praktische wasruimte
• Gelegen in kindvriendelijke en groene woonomgeving
• Winkels, scholen, kinderopvang en sportcomplex De Amerena nabij
• Goede bereikbaarheid: binnenstad, station Schothorst en uitvalswegen A1/A28

Kaart

Kenmerken

Overdracht

Vraagprijs
€ 475.000,- k.k.
Status
Verkocht
Aanvaarding
In overleg
Aangeboden sinds
Donderdag 18 september 2025
Laatste wijziging
Donderdag 23 oktober 2025

Bouw

Type object
Eengezinswoning, woonhuis, tussenwoning
Soort bouw
Bestaande bouw
Bouwjaar
1968
Dakbedekking
Dakpannen
Type dak
Zadeldak
Isolatievormen
Dakisolatie
Dubbel glas
Muurisolatie

Oppervlaktes en inhoud

Perceeloppervlakte
140 m²
Woonoppervlakte
116 m²
Inhoud
404 m³
Oppervlakte externe bergruimte
8 m²

Indeling

Aantal bouwlagen
3
Aantal kamers
5 (waarvan 4 slaapkamers)

Locatie

Ligging
Aan park
In woonwijk
Vrij uitzicht

Tuin

Type
Achtertuin
Hoofdtuin
Ja
Oriëntering
Zuidoost
Heeft een achterom
Ja
Staat
Normaal
Tuin 2 - Type
Achtertuin
Tuin 2 - Staat
Normaal
Tuin 3 - Type
Voortuin
Tuin 3 - Staat
Normaal

Energieverbruik

Energielabel
B

CV ketel

CV ketel
Nefit
Warmtebron
Gas
Bouwjaar
2018
Combiketel
Ja
Eigendom
Eigendom

Uitrusting

Warm water
CV-ketel
Verwarmingssysteem
Centrale verwarming
Open haard
Badkamervoorzieningen
Douche
Toilet
Wastafelmeubel
Heeft kabel-tv
Ja
Glasvezelaansluiting aanwezig
Ja
Tuin aanwezig
Ja
Heeft schuur/berging
Ja
Heeft zonwering
Ja

Kadastrale gegevens

Kadastrale aanduiding
Amersfoort A 4704
Perceeloppervlakte
140 m²
Omvang
Geheel perceel
Eigendomsituatie
Eigen grond

Brochure(s) en overige bijlagen

brochure Download