Nieuw in verkoop:Matthijs Vermeulenstraat 58, 3816 DC Amersfoort - Foto
Nieuw in verkoop
+63

Matthijs Vermeulenstraat 58 3816 DC Amersfoort € 525.000,- k.k.

  • Woonhuis
  • 5 kamers
  • 4 slaapkamers
  • Bouwjaar 1986
  • 132 m² perceeloppervlakte
  • 103 m² gebruiksoppervlakte
  • B Energielabel B

Beschrijving

Hier wil je wonen.

Een fijn gezinshuis op een uitstekende locatie, met veel leefruimte, licht en comfort.

De ligging is ideaal: in een rustige, kindvriendelijke wijk met uitsluitend bestemmingsverkeer. Direct voor de deur ligt een speelveld, waardoor kinderen veilig buiten kunnen spelen en je aan de voorzijde geniet van vrij uitzicht. En het mooiste is: binnen vijf minuten lopen sta je in de binnenstad van Amersfoort.

De zonnige achtertuin en maar liefst vier slaapkamers maken deze woning zeer geschikt voor gezinnen. Een groot pluspunt is de lichte woonkamer, met grote raampartijen en fraai uitzicht op de diepe achtertuin — een heerlijke plek om samen te leven en te ontspannen.

Woonomgeving:

Voor de dagelijkse boodschappen loop je zo naar het Euterpeplein met diverse winkels. Scholen, openbaar vervoer en groenvoorzieningen zoals Elisabeth Groen, Park Randenbroek en Landgoed Den Treek liggen in de directe omgeving. Ook de uitvalswegen A1 en A28 zijn snel bereikbaar en met circa tien minuten fietsen ben je op station Amersfoort Centraal.

Indeling

Begane grond

Je komt binnen in de hal met trapopgang, meterkast en toiletruimte. Vanuit hier stap je de tuingerichte woonkamer binnen: een fijne, lichte leefruimte met grote ramen, een loopdeur naar de tuin en een praktische trapkast. Aan de voorzijde bevindt zich de halfopen keuken in L-opstelling, voorzien van inbouwapparatuur en met prettig vrij uitzicht.

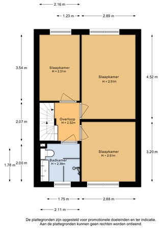
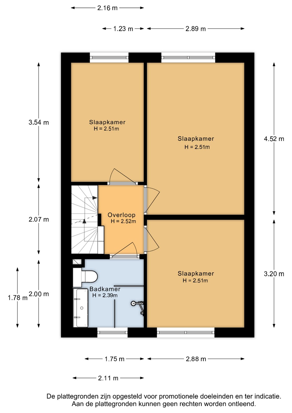
Eerste verdieping

Op de eerste verdieping bevinden zich drie goed bemeten slaapkamers. De badkamer is compleet uitgevoerd met een toilet, wastafelmeubel en douche.

Tweede verdieping

De tweede verdieping biedt een volwaardige vierde slaapkamer met dakraam. Op de overloop bevinden zich de cv-opstelling (2023), wasmachineaansluiting en extra daglicht via een dakraam.

Buitenruimte

De zonnige achtertuin is gelegen op het zuiden en biedt volop ruimte om buiten te zitten. De tuin beschikt over een berging en een achterom, wat het geheel extra praktisch maakt.

Kaart

Kenmerken

Overdracht

Referentienummer
00090/9887956
Vraagprijs
€ 525.000,- k.k.
Status
Nieuw in verkoop
Aanvaarding
In overleg
Aangeboden sinds
Maandag 26 januari 2026
Laatste wijziging
Vrijdag 13 februari 2026

Bouw

Type object
Woonhuis, eengezinswoning, tussenwoning
Soort bouw
Bestaande bouw
Bouwjaar
1986
Type dak
Zadeldak
Isolatievormen
Dakisolatie
Muurisolatie
Vloerisolatie

Oppervlaktes en inhoud

Perceeloppervlakte
132 m²
Woonoppervlakte
103 m²
Inhoud
362 m³

Indeling

Aantal bouwlagen
3
Aantal kamers
5 (waarvan 4 slaapkamers)

Locatie

Ligging
Aan rustige weg
In woonwijk

Tuin

Type
Achtertuin
Hoofdtuin
Ja
Heeft een achterom
Ja
Staat
Goed onderhouden

Energieverbruik

Energielabel
B

Uitrusting

Warm water
CV-ketel
Badkamervoorzieningen
Douche
Toilet
Wastafelmeubel
Heeft kabel-tv
Ja
Tuin aanwezig
Ja
Heeft schuur/berging
Ja
Heeft een dakraam
Ja
Heeft ventilatie
Ja

Brochure(s) en overige bijlagen