Drenth Makelaars
Drenth Makelaars
Verkocht onder voorbehoud:Matthias Withoosstraat 18, 3812 ST Amersfoort - Foto
Verkocht onder voorbehoud
+48

Matthias Withoosstraat 18 3812 ST Amersfoort € 650.000,- k.k.

  • Woonhuis
  • 5 kamers
  • 4 slaapkamers
  • Bouwjaar 1957
  • 195 m² perceeloppervlakte
  • 120 m² gebruiksoppervlakte
  • A++ Energielabel A++

Beschrijving

Wat een unieke instapklare twee-onder-een-kapwoning!

Deze verrassend ruime en sfeervolle twee-onder-een-kapwoning combineert karakter met modern wooncomfort. Gelegen in een gewild deel van het Soesterkwartier, op een royaal perceel van 195 m², is de woning de afgelopen jaren grondig verbouwd, verduurzaamd en aangepast aan de eisen van deze tijd. Het resultaat is een instapklare gezinswoning met veel licht, ruimte en energiezuinig wonen (energielabel A++).

In 2022 is de woning uitgebouwd en voorzien van een dakopbouw met nokverhoging, waardoor er verrassend veel extra leefruimte is ontstaan. De woning is daarbij volledig gemoderniseerd. De afwerking is strak en eigentijds, met onder andere glad stucwerk, nieuwe kozijnen, massief houten en stalen binnendeuren, visgraat PVC-vloeren en vloerverwarming met zoneregeling op alle verdiepingen. Dankzij uitstekende isolatie, HR+++ en HR++ glas en 15 zonnepanelen woon je hier comfortabel én toekomstbestendig. De diepe achtertuin vormt een fijne verlenging van het wooncomfort.

Woonomgeving

De ligging is ideaal. Je woont in een geliefd deel van het Soesterkwartier, aan een rustige éénrichtingsstraat, in een (kind)vriendelijke buurt met een prettige sfeer en goede gemeenschapszin. Station Amersfoort Centraal, het historische stadscentrum, het Eemplein en de Eemhaven – met aansluiting op de stadsgrachten – bevinden zich op slechts enkele minuten loopafstand. Vanuit de slaapkamers aan de voorzijde kijk je uit op de Onze Lieve Vrouwetoren.

In de directe omgeving vind je onder andere supermarkten, winkels, restaurants, een stadspark, kinderopvang en basisscholen. Daarnaast ligt de woning gunstig ten opzichte van Birkhoven, DierenPark Amersfoort, het Bosbad en diverse sportvoorzieningen.

Indeling

Begane grond

Via de zijentree kom je binnen in de hal met meterkast, toiletruimte en trapopgang. De stalen deur met glas vormt een mooie binnenkomer en geeft toegang tot de woonkamer. Aan de voorzijde bevindt zich het zitgedeelte met een groot raam en prettig veel daglicht.

Aan de achterzijde is de woning uitgebouwd en is een fijne woonkeuken ontstaan: een heerlijke leefruimte waar koken, eten en buiten met elkaar worden verbonden. De keuken is geplaatst in een L-opstelling en uitgerust met complete Smeg inbouwapparatuur, waaronder een inductiekookplaat, vaatwasser, oven, koelkast, vriezer en Quooker. De trapkast biedt praktische bergruimte en beschikt over een wasmachineaansluiting.

Via de dubbele openslaande tuindeuren loop je zo de diepe achtertuin in – een fijne plek om tot laat van de zon te genieten.

Eerste verdieping

De overloop is opvallend licht dankzij de Solatube en beschikt over vaste kasten. Op deze verdieping bevinden zich twee ruime slaapkamers.
De slaapkamer aan de voorzijde is voorzien van een stijlvolle scheidingswand met daarachter de kledingkasten. De moderne badkamer is zowel vanuit deze slaapkamer als vanaf de overloop toegankelijk en beschikt over een toilet, (regen)douche, stijlvol badkamermeubel en comfortabele vloerverwarming.

De slaapkamer aan de achterzijde is vergroot met een dakkapel, wat zorgt voor extra ruimte en licht. Deze kamer beschikt over inbouwkasten en –lades.

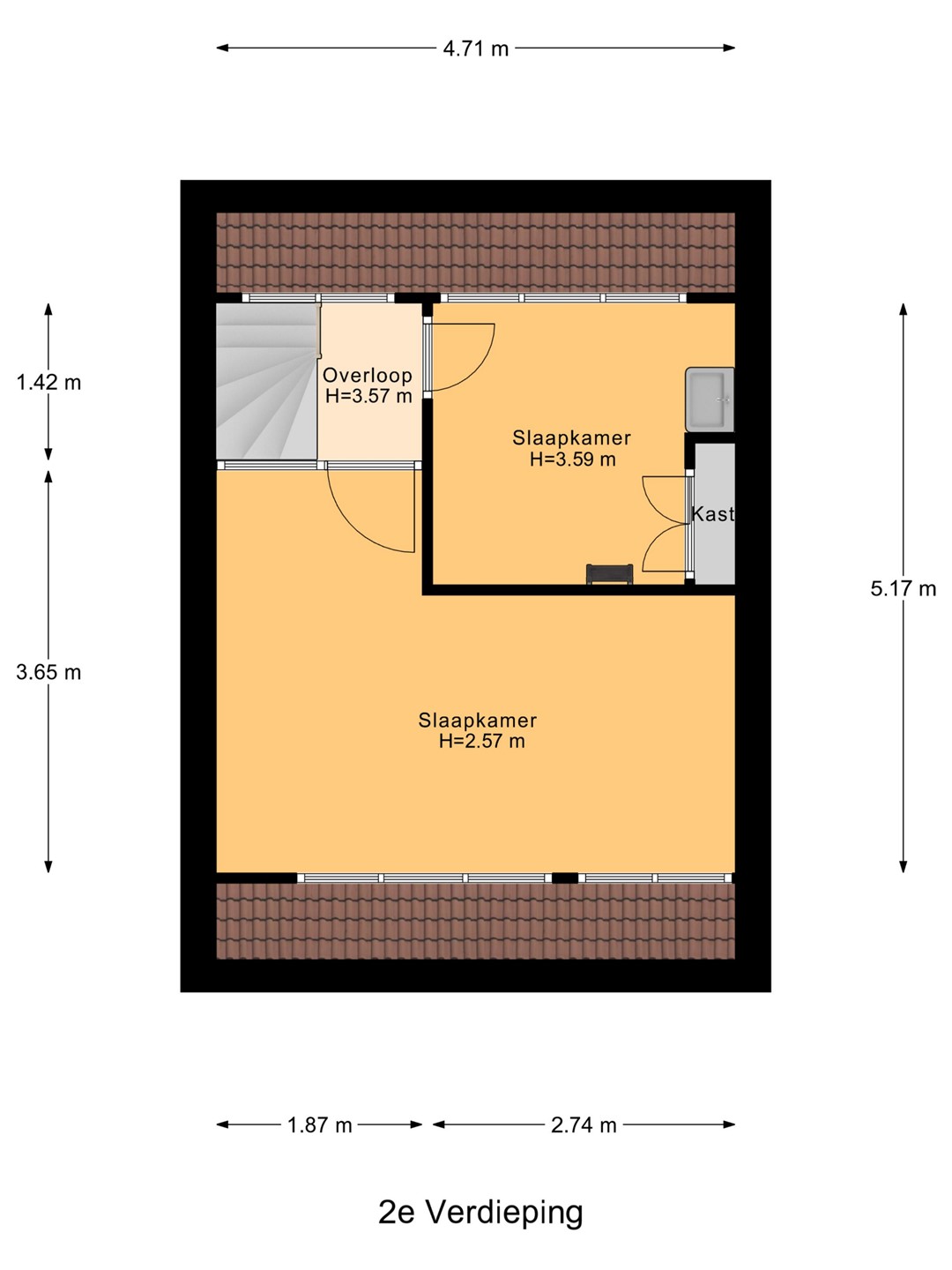
Tweede verdieping

Ook hier is slim omgegaan met ruimte en licht. De overloop geeft toegang tot twee slaapkamers. De slaapkamer aan de voorzijde is voorzien van airconditioning (Daikin). Aan de achterzijde bevindt zich de tweede slaapkamer met een marmeren wastafel, de cv-opstelling (Intergas HR-ketel uit 2022), netjes weggewerkt in een inbouwkast. Via een houten molenaarstrap is de praktische bergzolder bereikbaar.

Buitenruimte

De woning beschikt over een praktische voortuin en een diepe, brede achtertuin. De achtertuin is een fijne, rustige plek met volop gebruiksmogelijkheden. Achter in de tuin staat een stenen, deels geïsoleerde berging van ca. 13 m², voorzien van elektra en een vliering. Ideaal voor fietsen, gereedschap of opslag. In de berging bevindt zich aan de rechterzijde een tweede, geïsoleerd gedeelte, bereikbaar via een eigen deur. Deze ruimte is geschikt als werk- of hobbyruimte. De tuin is achterom bereikbaar via een eigen poort.

Kortom: een stijlvolle, instapklare en duurzame twee-onder-een-kapwoning op een toplocatie in Amersfoort.

Bijzonderheden

-Bouwjaar 1957
-Woonoppervlakte ca. 120 m²
-Perceel ca. 195 m²
-Energielabel A++
-15 zonnepanelen
-Dakopbouw met nokverhoging (2022)
-Vloerverwarming op alle verdiepingen
-Elektrische rolluiken in de slaapkamers op de eerste verdieping
-Voortuin, diepe achtertuin en achterom
-Gedeeltelijk geïsoleerde stenen berging

Kaart

Kenmerken

Overdracht

Referentienummer
00090/9141000
Vraagprijs
€ 650.000,- k.k.
Status
Verkocht onder voorbehoud
Aanvaarding
In overleg
Aangeboden sinds
Dinsdag 27 mei 2025
Laatste wijziging
Vrijdag 13 februari 2026

Bouw

Type object
Woonhuis, eengezinswoning, twee onder een kap woning
Soort bouw
Bestaande bouw
Bouwjaar
1957
Type dak
Zadeldak
Keurmerken
Politiekeurmerk
Isolatievormen
Dakisolatie
Muurisolatie
Vloerisolatie

Oppervlaktes en inhoud

Perceeloppervlakte
195 m²
Woonoppervlakte
120 m²
Inhoud
415 m³

Indeling

Aantal bouwlagen
3
Aantal kamers
5 (waarvan 4 slaapkamers)

Locatie

Ligging
Aan rustige weg
In woonwijk

Tuin

Type
Achtertuin
Hoofdtuin
Ja
Heeft een achterom
Ja
Staat
Normaal

Energieverbruik

Energielabel
A++

Uitrusting

Warm water
CV-ketel
Badkamervoorzieningen
Douche
Toilet
Wastafelmeubel
Heeft airco
Ja
Heeft kabel-tv
Ja
Tuin aanwezig
Ja
Heeft schuur/berging
Ja
Heeft zonwering
Ja

Brochure(s) en overige bijlagen