Drenth Makelaars
Drenth Makelaars
Verkocht:Liendertseweg 19, 3814 PG Amersfoort - Foto
Verkocht
+37

Liendertseweg 19 3814 PG Amersfoort

  • Woonhuis
  • 4 kamers
  • 3 slaapkamers
  • Bouwjaar 1926
  • 195 m² perceeloppervlakte
  • 113 m² gebruiksoppervlakte
  • D Energielabel D

Beschrijving

Sfeervolle jaren '30 hoekwoning met zonnige tuin nabij het centrum van Amersfoort
Op een steenworp afstand van de gezellige binnenstad én met volop ruimte om te leven, vind je deze karakteristieke jaren '30 hoekwoning. De woning beschikt over een fantastische, op het zuidoosten gelegen achtertuin waar je volop van de zon kunt genieten.

Daarnaast is de ligging, zo vlak bij het centrum uniek te noemen. De historische binnenstad ligt op loopafstand, om lekker te winkelen of uit te gaan. De dagelijkse boodschappen doe je op het nabijgelegen Neptunusplein, bij meerdere supermarkten. Zowel het Centraal Station, Station Schothorst als de uitvalswegen zijn dichtbij.

De indeling is als volgt:

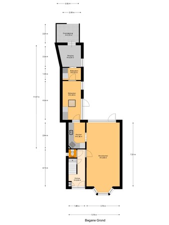
Via de fraai aangelegde voortuin bereik je de entree met plavuizen vloer, trapopgang, kelderkast, meterkast en een modern betegeld toilet. De lichte woonkamer heeft een gezellige erker aan de voorzijde en openslaande tuindeuren aan de achterzijde. De authentieke sfeer wordt versterkt door de fraaie "antique grenen" parketvloer, die doorloopt tot in de halfopen hoekkeuken. Deze keuken is voorzien van inbouwapparatuur, een natuurstenen werkblad en klassieke elementen zoals een bordenrek en vaste kast.

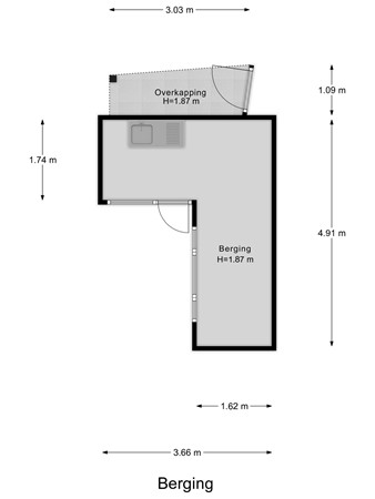
De royale bijkeuken met dakkoepel biedt volop bergruimte, een ingebouwde vaatwasser en toegang tot een aparte wasruimte én een multifunctionele kamer, ideaal als werkplek, speelkamer of hobbyruimte.

Eerste verdieping
Ruime en lichte overloop met dakkapel. Twee slaapkamers, beide voorzien van een dakkapel en vaste kast(en), waarvan één met stijlvolle inbouw kledingkasten. De moderne badkamer is uitgerust met een ligbad, douche, wastafelmeubel, hangtoilet en extra kastruimte.

Tweede verdieping
Via een vaste trap bereik je de zolderverdieping met voorzolder (CV-opstelling) en een ruime, lichte slaapkamer met Velux dakraam.

Buitenruimte
De tuin is een van de grote pluspunten van deze woning: heerlijk ruim, zonnig gelegen (zuidoosten), en voorzien van een houten tuinhuis met pannendak, een overdekte fietsenberging én een achterom. Een ideale plek om te ontspannen, tuinieren of gezellig buiten te eten met vrienden en familie.

Kenmerken woning:
• Karaktervolle jaren '30 woning met sfeervolle details
• Royale, zonnige tuin op het zuidoosten
• Nabij het centrum, winkels en uitvalswegen
• Uitgebouwde begane grond met multifunctionele ruimte
• Vier (slaap)kamers en een moderne badkamer

Kaart

Kenmerken

Overdracht

Referentienummer
00090/8952129
Vraagprijs
€ 500.000,- k.k.
Status
Verkocht
Aanvaarding
In overleg
Aangeboden sinds
Maandag 31 maart 2025
Laatste wijziging
Donderdag 10 juli 2025

Bouw

Type object
Woonhuis, eengezinswoning, eind woning
Soort bouw
Bestaande bouw
Bouwjaar
1926
Type dak
Mansardedak
Isolatievormen
Dakisolatie
Gedeeltelijk dubbel glas

Oppervlaktes en inhoud

Perceeloppervlakte
195 m²
Woonoppervlakte
113 m²
Inhoud
408 m³
Oppervlakte gebouwgebonden buitenruimte
5 m²

Indeling

Aantal bouwlagen
3
Aantal kamers
4 (waarvan 3 slaapkamers)

Locatie

Ligging
In woonwijk

Tuin

Type
Achtertuin
Hoofdtuin
Ja
Oriëntering
Zuidoost
Heeft een achterom
Ja
Staat
Normaal

Energieverbruik

Energielabel
D

Uitrusting

Warm water
CV-ketel
Badkamervoorzieningen
Douche
Ligbad
Toilet
Wastafelmeubel
Heeft kabel-tv
Ja
Tuin aanwezig
Ja
Heeft schuur/berging
Ja
Heeft een dakraam
Ja
Heeft zonwering
Ja

Brochure(s) en overige bijlagen