Drenth Makelaars
Drenth Makelaars
Verkocht:Kreupelstraat 7, 3811 HZ Amersfoort - Foto
Verkocht
+33

Kreupelstraat 7 3811 HZ Amersfoort

  • Appartement
  • 2 kamers
  • 1 slaapkamer(s)
  • Bouwjaar 1983
  • 57 m² gebruiksoppervlakte
  • D Energielabel D

Beschrijving

Opvallend leuk, rustig en energiezuinig appartement in centrum Amersfoort.

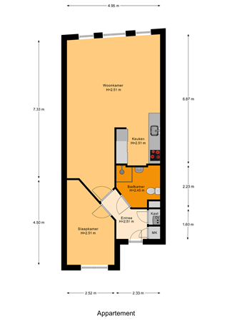
Wonen tussen de diverse boetiekjes en gezellige restaurantjes in hartje Amersfoort? Dit leuke stads appartement biedt een lichte living, open keuken, slaapkamer, ruime badkamer en eigen berging. Eenmaal buiten je voordeur wandel je de sfeervolle winkelstraat in voor een ruime keuze aan winkels en gezellige terrassen. Voor een lange wandeling, uurtje sporten of een zomerse picknick is het Stadsmuur Plantsoen dichtbij en met de fiets ben je binnen enkele minuten bij het Centraal Station. De ingang van het appartement vind je aan de “Achter de Kamp” zijde. De binnenplaats brengt je bij jouw woning aan de Kreupelstraat. Omdat er aan de linkerzijde geen naast gelegen woningen zijn, wordt de oppervlakte voor de woning gebruikt als zonnig privé terras. De indeling is als volgt: Je komt binnen in de hal die je toegang biedt tot alle ruimtes van de woning. Zo vind je de living aan de straatzijde van het appartement. De grote ramen bieden uitzicht op de Kamp met haar historische gevels. Het appartement heeft een nieuwe (2025) keuken met grote koel/vriescombinatie, inductiekookplaat, vaatwasser en oven.

Energiezuinig. De vorige bewoners gaven aan de verwarming bijna niet aan te doen. Het gasverbruik was meestal minder dan 200m3 per jaar. Stroomverbruik ligt rond de 1500kWh en dat is inclusief elektrische kookplaat. Dat is een lager verbruik dan het energielabel D doet vermoeden. Bij de bezichtiging zullen we verder uitleggen hoe dat komt.

Er is één slaapkamer aan de galerijzijde van het appartement waar de stadsgeluiden vrijwel niet hoorbaar zijn.

De badkamer heeft een douche, wastafel, toilet, stroom, water en afvoer voorziening voor wasmachine en wasdroger.

In de kelder van het complex bevindt zich nog een berging voor opslag en fietsen.

Voor het parkeren rondom het appartement is een parkeervergunning verplicht, maar er zit ook een parkeergarage om de hoek. Bijzonderheden: - Maandelijkse VvE-bijdrage € 165,44 - Oplevering: kan op korte termijn.

Wonen aan de Kreupelstraat 7? Bel dan voor een bezichtiging!

Bijzonderheden:

- Maandelijkse VvE-bijdrage € 165,44
- Oplevering: in overleg (kan op korte termijn)

Wonen aan de Kreupelstraat 7? Bel dan voor een bezichtiging!

Kaart

Kenmerken

Overdracht

Referentienummer
00090/9273672
Vraagprijs
€ 287.000,- k.k.
Status
Verkocht
Aanvaarding
In overleg
Aangeboden sinds
Dinsdag 8 juli 2025
Laatste wijziging
Woensdag 20 augustus 2025

Bouw

Type object
Appartement, galerijflat
Woonlaag
1e woonlaag
Soort bouw
Bestaande bouw
Bouwjaar
1983
Type dak
Platdak
Isolatievormen
Muurisolatie

Oppervlaktes en inhoud

Woonoppervlakte
57 m²
Inhoud
178 m³

Indeling

Aantal bouwlagen
1
Aantal kamers
2 (waarvan 1 slaapkamer)

Locatie

Ligging
In centrum

Energieverbruik

Energielabel
D

Uitrusting

Warm water
CV-ketel
Badkamervoorzieningen
Douche
Toilet
Wastafel
Heeft kabel-tv
Ja
Heeft een lift
Ja
Heeft schuur/berging
Ja
Heeft ventilatie
Ja

Brochure(s) en overige bijlagen