Drenth Makelaars
Drenth Makelaars
Verkocht:Jan Tooropstraat 16, 3817 PZ Amersfoort - Foto
Verkocht
+51

Jan Tooropstraat 16 3817 PZ Amersfoort

  • Woonhuis
  • 6 kamers
  • 4 slaapkamers
  • Bouwjaar 1936
  • 186 m² perceeloppervlakte
  • 115 m² gebruiksoppervlakte
  • B Energielabel B

Beschrijving

Wonen in het populaire en sfeervolle Vermeerkwartier?

Dat kan in deze verrassend ruime jaren '30 woning aan de Jan Tooropstraat 16!

De woning combineert het karakteristieke van de jaren ’30 met hedendaags wooncomfort en biedt onder andere een sfeervolle woonkamer, een uitgebouwde woonkeuken, vier slaapkamers, een complete badkamer en 9 zonnepanelen.
Daarnaast beschikt de woning over een diepe achtertuin met een prachtige magnolia, een stenen berging én een multifunctionele praktijkruimte.

Woonomgeving

De Jan Tooropstraat is één van de meest geliefde straten in het Vermeerkwartier: rustig, groen en kindvriendelijk. Diverse speelplekken liggen op korte loopafstand, ideaal voor gezinnen met jonge kinderen. Ook voorzieningen als basisscholen, middelbare scholen, kinderdagverblijven, supermarkten, sportclubs en het Centraal Station zijn dichtbij. Binnen enkele minuten fietsen bereikt u de historische binnenstad van Amersfoort en het prachtige Park Randenbroek. Tevens zijn de uitvalswegen snel en eenvoudig bereikbaar, waardoor u in no-time richting Utrecht of Amsterdam rijdt.

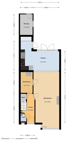
Indeling

Begane grond

Via de authentieke voordeur betreedt u de hal, die is voorzien van een toiletruimte, trapopgang en praktische trapkast.
De sfeervolle woonkamer heeft een gezellige erker aan de voorzijde en een gashaard voor extra warmte en sfeer.

Aan de zijkant vindt u een multifunctionele werkkamer zonder daglicht, ideaal als thuiswerkplek of speelkamer.
De ruime, uitgebouwde woonkeuken – afgescheiden van de woonkamer met schuifdeuren – is uitgevoerd in een L-opstelling met aanvullend een wandmeubel en beschikt over diverse inbouwapparatuur.

Dankzij de openslaande tuindeuren én een aparte loopdeur naar de tuin geniet u optimaal van de verbinding tussen binnen en buiten.

Eerste verdieping

De overloop biedt toegang tot drie slaapkamers, allen voorzien van een dakkapel. De badkamer is uitgerust met een ligbad, aparte douchecabine, dubbele wastafel en een dakraam voor natuurlijke ventilatie en lichtinval.

Tweede verdieping

Via een vaste trap bereikt u de tweede verdieping, waar een overloop met dakraam en de opstelplaats voor de cv-ketel zich bevinden.

Daarnaast is hier de vierde slaapkamer met twee dakramen, wat zorgt voor een aangename lichtinval.

Tuin en bijgebouwen

De woning beschikt over een diepe achtertuin met achterom, ideaal voor gezinnen en tuinliefhebbers.
Aangrenzend aan de woning bevindt zich een aangebouwde stenen berging. Achterin de tuin is een volledig geïsoleerde ruimte gerealiseerd, perfect te gebruiken als praktijkruimte, kantoor aan huis of atelier. Deze ruimte dient nog verder afgewerkt te worden en kan worden aangesloten op riool, elektra en water, wat de mogelijkheden nog verder vergroot.

Samenvatting

Gelegen in het geliefde Vermeerkwartier

Sfeervolle jaren '30 woning

Vier slaapkamers

Uitgebouwde woonkeuken

9 zonnepanelen

Diepe tuin met praktijkruimte/kantoor aan huis

Gunstige ligging nabij centrum, scholen, park en station

Bent u op zoek naar een woning waarin karakter, ruimte en locatie samenkomen? Dan is Jan Tooropstraat 16 zeker een bezichtiging waard!

Kaart

Kenmerken

Overdracht

Referentienummer
00090/6050078
Vraagprijs
€ 650.000,- k.k.
Status
Verkocht
Aanvaarding
In overleg
Aangeboden sinds
Maandag 13 december 2021
Laatste wijziging
Woensdag 23 juli 2025

Bouw

Type object
Woonhuis, eengezinswoning, tussenwoning
Soort bouw
Bestaande bouw
Bouwjaar
1936
Type dak
Mansardedak
Keurmerken
Bouwkundige keuring
Isolatievormen
Dakisolatie
Dubbel glas
Muurisolatie
Vloerisolatie

Oppervlaktes en inhoud

Perceeloppervlakte
186 m²
Woonoppervlakte
115 m²
Inhoud
404 m³

Indeling

Aantal bouwlagen
3
Aantal kamers
6 (waarvan 4 slaapkamers)

Locatie

Ligging
Aan rustige weg
In woonwijk

Tuin

Type
Achtertuin
Hoofdtuin
Ja
Heeft een achterom
Ja
Staat
Goed onderhouden

Energieverbruik

Energielabel
B

Uitrusting

Warm water
CV-ketel
Badkamervoorzieningen
Douche
Dubbele wastafel
Ligbad
Heeft kabel-tv
Ja
Heeft een rookkanaal
Ja
Tuin aanwezig
Ja
Heeft schuur/berging
Ja
Heeft een dakraam
Ja

Brochure(s) en overige bijlagen