Drenth Makelaars
Drenth Makelaars
Verkocht:Ganzenstraat 160, 3815 JK Amersfoort - Foto
Verkocht
+29

Ganzenstraat 160 3815 JK Amersfoort

  • Appartement
  • 4 kamers
  • 3 slaapkamers
  • Bouwjaar 1968
  • 96 m² gebruiksoppervlakte
  • D Energielabel D

Beschrijving

Ben je op zoek naar een woning met ruimte, veel licht en prachtig uitzicht?

Dan hebben we iets bijzonders voor je: een ruim en goed onderhouden 4-kamer appartement dat perfect past bij jouw wensen.

Dit appartement biedt een lichte woonkamer, een ruime keuken, drie comfortabele slaapkamers en een badkamer.

Het zonnige balkon, dat de hele breedte van het appartement beslaat, biedt een fraai uitzicht. Daarnaast heeft de woning een centrale ligging, dicht bij het bruisende centrum en diverse voorzieningen die jouw levensstijl compleet maken.

Klinkt dit als jouw ideale thuis? Aarzel niet en neem snel contact met ons op voor het inplannen van een bezichtiging.

Locatie:

Het appartement is gelegen in een rustige, groene woonomgeving, dicht bij alle voorzieningen. Supermarkten en diverse winkels zijn op loopafstand te vinden, en het levendige centrum van Amersfoort en het NS-station bereik je in slechts enkele minuten fietsen. Parkeren is mogelijk in de omgeving en er is voldoende parkeergelegenheid beschikbaar.

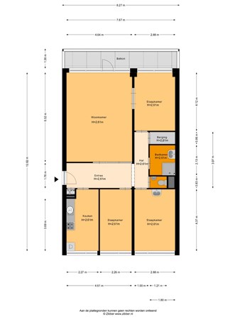
Indeling:

Begane grond:

Bij binnenkomst kom je in de centrale entree, waar je ook het bellen- en brievenbustableau vindt. Met de lift of via het keurige trappenhuis bereik je de vijfde verdieping waar het appartement zich bevindt. Op de begane grond is er tevens een eigen berging beschikbaar, waar je jouw fiets en andere spullen kunt opbergen.

Vijfde verdieping:

Via de ruime hal betreed je de woning.

De woonkamer is heerlijk licht dankzij de grote ramen en de deur naar het balkon.

Vanuit de hal heb je toegang tot de slaapkamers, de badkamer en het aparte toilet met fonteintje. Ook de meterkast bevindt zich hier.

Direct naast de woonkamer bevindt zich een van de drie slaapkamers. Deze kamer is ruim genoeg en profiteert van veel natuurlijk daglicht dankzij de grote ramen. De ruimte is perfect als slaapkamer, maar kan ook dienen als kantoor of hobbyruimte.

De keuken bevindt zich aan de andere kant van het appartement. Aan deze zijde ook de twee overige slaapkamers.

De badkamer is voorzien van douche en wastafel.

Dankzij de gunstige ligging van het gebouw kun je volop genieten van het zonnige balkon aan de zijde van de woonkamer. Hier kun je heerlijk ontspannen in het zonnetje, terwijl je geniet van het vrije uitzicht over de wijk en de stad.

De VVE bijdrage voor de woning met berging zijn ca. € 216,20,- per maand + €175,- voorschot stookkosten per maand + €9,- voorschot water per maand.

NB: De verkoper werkt met een projectnotaris.

Kaart

Kenmerken

Overdracht

Referentienummer
00090/8714383
Vraagprijs
€ 300.000,- k.k.
Status
Verkocht
Aanvaarding
In overleg
Aangeboden sinds
Donderdag 16 januari 2025
Laatste wijziging
Donderdag 1 mei 2025

Bouw

Type object
Appartement, portiekflat
Woonlaag
5e woonlaag
Soort bouw
Bestaande bouw
Bouwjaar
1968
Type dak
Platdak
Isolatievormen
Gedeeltelijk dubbel glas

Oppervlaktes en inhoud

Woonoppervlakte
96 m²
Inhoud
318 m³
Oppervlakte gebouwgebonden buitenruimte
11 m²

Indeling

Aantal bouwlagen
1
Aantal kamers
4 (waarvan 3 slaapkamers)

Locatie

Ligging
Aan rustige weg
In woonwijk
Vrij uitzicht

Energieverbruik

Energielabel
D

Uitrusting

Warm water
Elektrische boiler
Badkamervoorzieningen
Douche
Wastafel
Heeft een balkon
Ja
Heeft kabel-tv
Ja
Heeft een lift
Ja
Heeft schuur/berging
Ja