Drenth Makelaars
Drenth Makelaars
Verkocht onder voorbehoud:Fahrenheitstraat 1, 3817 WB Amersfoort - Foto
Verkocht onder voorbehoud
+58

Fahrenheitstraat 1 3817 WB Amersfoort € 950.000,- k.k.

  • Woonhuis
  • 5 kamers
  • 4 slaapkamers
  • Bouwjaar 1932
  • 294 m² perceeloppervlakte
  • 133 m² gebruiksoppervlakte
  • A++ Energielabel A++

Beschrijving

Charmante jaren ’30 twee-onder-één-kapwoning in het Leusderkwartier

Deze karakteristieke woning uit begin jaren ’30 combineert de sfeer van vroeger met het comfort en de duurzaamheid van nu. Met speelse geveldetails, royale dakoverstekken en een verrassend diepe achtertuin mét berging/overkapping en aangebouwde garage, is dit een huis waar u direct verliefd op wordt.

De woning is volledig gemoderniseerd en opgeknapt, met oog voor detail én duurzaamheid. Zo is het huis grotendeels voorzien van nieuwe kozijnen met HR-glas, beschikt het over 27 zonnepanelen, een warmtepomp, vloerisolatie, dakisolatie, een nieuw dak en vloerverwarming op de begane grond én eerste verdieping. Bovendien is de woning volledig gasloos – helemaal klaar voor de toekomst!

Woonomgeving

De ligging aan de rustige Fahrenheitstraat, midden in het geliefde Leusderkwartier, is ideaal. Binnen enkele minuten fietst u naar de gezellige Amersfoortse binnenstad, terwijl u voor ontspanning ook terecht kunt in de nabijgelegen natuurgebieden Landgoed Nimmerdor en Den Treek. Winkels aan de Leusderweg, basisscholen, kinderopvang, sportverenigingen en het Centraal Station bevinden zich allemaal op loop- of fietsafstand. Bovendien rijdt u in nog geen drie minuten de A28 op.

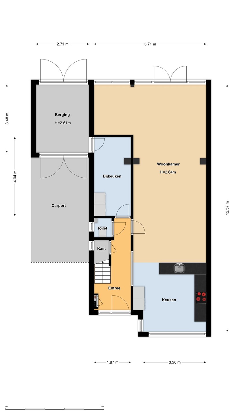
Indeling

Begane grond
Entree met hal, trapopgang (met nieuwe eikenhouten trap), trapkast en toiletruimte. Vanuit de hal bereikt u de praktische bijkeuken met wasmachineaansluiting. Ook is er toegang tot de aangebouwde berging/garage, die volledig geïsoleerd is, beschikt over krachtstroom en dubbele deuren heeft aan zowel de voor- als achterzijde – ideaal als achterom of multifunctionele werk-/hobbyruimte.

Tussen de hal en de woonkamer bevindt zich een fraaie glazen pui met zwarte stalen kozijnen, die zorgt voor extra licht en een stijlvolle doorkijk. Aan de voorzijde ligt de moderne keuken in L-opstelling met wandmeubel en een betonnen werkblad. Aansluitend vindt u de eetkamer met sfeervolle houtkachel. De uitgebouwde woonkamer beschikt over een grote stalen pui met openslaande deuren naar de tuin, die zorgt voor een prachtig zicht op het groen.

Eerste verdieping
Overloop met dakkapel. Drie slaapkamers, waaronder de hoofdslaapkamer aan de achterzijde met Frans balkon en inbouwkast. Daarnaast een tweede slaapkamer aan de achterzijde en een derde kamer aan de voorzijde. De badkamer is modern uitgevoerd met ligbad, douche, toilet, wastafelmeubel en vloerverwarming.

Tweede verdieping
Ruime zolder met hoge nok, dakraam, warmtepomp en boiler. Deze open ruimte wordt nu gebruikt als logeerplek, maar biedt volop mogelijkheden om een extra slaapkamer te realiseren.

Buitenruimte

De diepe, zonnige achtertuin (zuidligging) is fraai aangelegd met gazon en borders. Achterin de tuin staat een geïsoleerde berging met naastgelegen overkapping: een heerlijke plek om in de zomer te genieten van het buitenleven. Aan de voorzijde beschikt de woning over een oprit met plaats voor twee auto’s.

Kaart

Kenmerken

Overdracht

Referentienummer
00090/7958431
Vraagprijs
€ 950.000,- k.k.
Status
Verkocht onder voorbehoud
Aanvaarding
In overleg
Aangeboden sinds
Vrijdag 10 mei 2024
Laatste wijziging
Donderdag 12 maart 2026

Bouw

Type object
Woonhuis, eengezinswoning, twee onder een kap woning
Soort bouw
Bestaande bouw
Bouwjaar
1932
Type dak
Samengesteld
Keurmerken
Bouwkundige keuring
Isolatievormen
Dakisolatie
Vloerisolatie

Oppervlaktes en inhoud

Perceeloppervlakte
294 m²
Woonoppervlakte
133 m²
Inhoud
494 m³
Oppervlakte gebouwgebonden buitenruimte
16 m²

Indeling

Aantal bouwlagen
3
Aantal kamers
5 (waarvan 4 slaapkamers)

Locatie

Ligging
Aan rustige weg
In woonwijk
Vrij uitzicht

Tuin

Type
Achtertuin
Hoofdtuin
Ja
Oriëntering
Zuiden
Staat
Goed onderhouden

Energieverbruik

Energielabel
A++

Uitrusting

Warm water
Elektrische boiler
Badkamervoorzieningen
Douche
Ligbad
Toilet
Wastafelmeubel
Parkeergelegenheid
Aangebouwde stenen garage
Heeft kabel-tv
Ja
Heeft een rookkanaal
Ja
Heeft een frans balkon
Ja
Tuin aanwezig
Ja
Heeft een garage
Ja
Heeft schuur/berging
Ja
Heeft een dakraam
Ja
Heeft zonwering
Ja
Heeft ventilatie
Ja

Brochure(s) en overige bijlagen