Drenth Makelaars
Drenth Makelaars
Verkocht:Elly Takmastraat 12, 3813 MB Amersfoort - Foto
Verkocht
+22

Elly Takmastraat 12 3813 MB Amersfoort

  • Appartement
  • 2 kamers
  • 1 slaapkamer(s)
  • Bouwjaar 1983
  • 37 m² gebruiksoppervlakte
  • D Energielabel D

Beschrijving

Stap binnen in dit lichte, gelijkvloerse 2-kamerappartement en voel direct de rust. Hier woon je op de begane grond, met je eigen zonnige tuin waarbinnen en buiten naadloos in elkaar overlopen. De ligging is ideaal: een rustige straat in de geliefde wijk Schothorst, met winkels, station en het bruisende centrum van Amersfoort op slechts een paar minuten afstand.

Comfort, gemak én een vleugje buitenleven, allemaal in één woning.

De ligging van dit appartement is ideaal. Binnen handbereik vind je winkelcentrum Schothorst, diverse scholen, speelvoorzieningen voor kinderen en sportfaciliteiten. Openbaar vervoer is gemakkelijk bereikbaar, zowel per bus als via het NS-station, en binnen enkele minuten fietsen sta je in het bruisende centrum van Amersfoort. Rondom het gebouw is voldoende parkeergelegenheid aanwezig, waardoor je altijd eenvoudig je auto kwijt kunt.

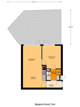
Het appartement beschikt over een prettige tuin aan de voorzijde, waar je heerlijk van de zon kunt genieten of een eigen groene oase kunt creëren. Ook is er een eigen berging aanwezig, ideaal voor fietsen en extra opslag. De woonkamer is licht en ruimtelijk, voorzien van een nette laminaatvloer, en heeft directe toegang tot de tuin, waardoor binnen en buiten moeiteloos in elkaar overlopen. De open keuken is functioneel, met voldoende werk- en opbergruimte om al je kookinspiratie kwijt te kunnen.

De slaapkamer grenst eveneens aan de tuin en biedt veel rust en privacy. Hier kun je ’s ochtends rustig ontwaken met het uitzicht op je eigen groene plek. De badkamer is praktisch ingericht en voorzien van een douchehoek, toilet, vaste wastafel en boiler. Het gehele appartement is afgewerkt met strakke wanden en isolatieglas, waardoor het zowel comfortabel als energiezuinig is.

De begane grond biedt een centrale entree met bellentableau, die toegang geeft tot het appartement. Vanuit de hal kom je in de lichte woonkamer, die in open verbinding staat met de keuken en directe toegang biedt tot de tuin.
De slaapkamer is eveneens direct verbonden met de tuin en biedt een rustige, privéplek om te ontspannen.

De badkamer is ingericht met een douchehoek, toilet, wastafel en boiler, waardoor alles aanwezig is voor het dagelijkse comfort.

Daarnaast is er een aparte berging aanwezig, perfect voor extra opslag of het stallen van fietsen en tuinspullen.

Kortom; dit appartement is een comfortabele, gelijkvloerse woning met buitenruimte op een praktische en rustige plek. Of je nu je eerste woning zoekt, een gelijkvloers alternatief wilt, of een fijne uitvalsbasis in Amersfoort zoekt: dit appartement is absoluut een bezichtiging waard!

Kaart

Kenmerken

Overdracht

Vraagprijs
€ 275.000,- k.k.
Servicekosten
€ 220,-
Status
Verkocht
Aanvaarding
In overleg
Aangeboden sinds
Vrijdag 22 augustus 2025
Laatste wijziging
Donderdag 18 september 2025

Bouw

Type object
Appartement, benedenwoning
Woonlaag
1e woonlaag
Soort bouw
Bestaande bouw
Bouwjaar
1983
Type dak
Platdak
Isolatievormen
Dubbel glas
Muurisolatie
Vloerisolatie

Oppervlaktes en inhoud

Woonoppervlakte
37 m²
Inhoud
123 m³
Oppervlakte externe bergruimte
6 m²

Indeling

Aantal bouwlagen
1
Aantal kamers
2 (waarvan 1 slaapkamer)

Locatie

Ligging
Aan rustige weg
In woonwijk
Vrij uitzicht

Tuin

Type
Achtertuin
Hoofdtuin
Ja
Heeft een achterom
Ja
Staat
Normaal
Tuin 2 - Type
Achtertuin
Tuin 2 - Staat
Normaal

Energieverbruik

Energielabel
D

Uitrusting

Warm water
Elektrische boiler
Verwarmingssysteem
Blokverwarming
Badkamervoorzieningen
Douche
Toilet
Wastafel
Heeft kabel-tv
Ja
Glasvezelaansluiting aanwezig
Ja
Tuin aanwezig
Ja
Heeft schuur/berging
Ja

Vereniging van Eigenaren

Ingeschreven bij de KvK
Ja
Jaarlijkse vergadering
Ja
Periodieke bijdrage
Ja
Reservefonds
Ja
Onderhoudsverwachting
Ja
Opstal verzekering
Ja

Kadastrale gegevens

Kadastrale aanduiding
Amersfoort K 6200
Omvang
Appartementsrecht of complex
Eigendomsituatie
Eigen grond

Media

Plattegronden

Brochure(s) en overige bijlagen

brochure Download