Drenth Makelaars
Drenth Makelaars
Verkocht:De Stelp 14, 3823 VT Amersfoort - Foto
Verkocht
+46

De Stelp 14 3823 VT Amersfoort

  • Woonhuis
  • 5 kamers
  • 4 slaapkamers
  • Bouwjaar 1995
  • 247 m² perceeloppervlakte
  • 168 m² gebruiksoppervlakte
  • A Energielabel A

Beschrijving

Ruimte en Licht in Kattenbroek: Een Geschakelde Villa die Verblijdt

Welkom in deze bijzondere geschakelde villa, gelegen in het gewilde Kattenbroek!

Met een speelse indeling en een overvloed aan lichtinval biedt deze woning een warme en uitnodigende sfeer.
Het perfecte huis voor wie houdt van een goed doordacht ontwerp, moderne voorzieningen en een fijne woonomgeving.

Buitenkant die de nieuwsgierigheid wekt

Van de buitenkant lijkt de woning al te spreken. Het ontwerp nodigt je uit om verder te kijken en de charme van het interieur te ontdekken. Zodra je binnenstapt, word je verwelkomd door een lichte en open indeling, waar elke ruimte zijn eigen functie heeft en toch perfect met elkaar in verbinding staat.

Indeling: van werkkamer tot dakterras

Op de begane grond is de ruime woonkamer de absolute blikvanger. Dankzij de grote ramen stroomt het daglicht rijkelijk binnen, en met de dubbele deuren die toegang geven tot de tuin, is dit een ruimte die zich uitstekend leent voor zowel gezellige avonden als ontspannen momenten. De gashaard maakt het plaatje compleet.

De woonkeuken, aan de voorzijde van de woning, is ideaal voor wie houdt van koken in stijl. Het L-vormige keukenblok is uitgerust met een 5-pits fornuis, vaatwasser, koelkast en magnetron. Het is de perfecte plek om je culinaire talenten te showen, met uitzicht op de rustige straat.

Daarnaast beschikt de begane grond over een handige werkkamer, ideaal voor thuiswerken of als extra speelruimte. De lichte werkkamer heeft een lichtkoepel en uitzicht op de tuin. De nieuwe hal, die de voormalige garage verbindt met de woning, biedt voldoende mogelijkheden, zoals een gezellig zitje om in alle rust even te lezen. Vanuit de oorspronkelijke hal met een ruime voorraadkast, een toiletruimte en de trap naar de eerste verdieping, is er toegang tot de woonkamer en keuken.

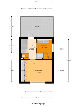
Op de eerste verdieping vind je de master bedroom, die heerlijk ruim is en voldoende kastruimte biedt. Verder is er een moderne badkamer (2017), compleet met elektrische vloerverwarming, regendouche en dubbele wastafel.
Het in dezelfde stijl uitgevoerde toilet is separaat. De wasruimte maakt het dagelijks leven net iets gemakkelijker. Vanaf de overloop is er toegang tot een groot dakterras – een ideale plek om in de zon te genieten of een rustig moment door te brengen .

De tweede verdieping beschikt over twee comfortabele slaapkamers, beide voorzien van inbouwkasten en ideaal voor kinderen, gasten of als extra werkruimte. Door de 2 bergzolders is er voldoende opbergruimte. Verder is er een handige kast voor de cv-opstelling.

Buitenruimte en tuinen

De woning biedt zowel een voor- als achtertuin, met veel privacy. De achtertuin is niet alleen een fijne plek om te ontspannen, maar is ook voorzien van een overkapping, zodat je het hele jaar door kunt genieten van het buitenleven. De voorzijde van de woning biedt ruimte voor parkeergelegenheid op eigen terrein voor twee auto's, met toegang tot de berging.

Duurzaam en goed onderhouden

De woning is goed geïsoleerd en voorzien van maar liefst 10 zonnepanelen uit december 2023, waardoor je kunt genieten van lagere energiekosten en een duurzamer leven. De bitumineuze dakbedekking van de platte daken werd in 2022 vernieuwd, zodat je kunt rekenen op een goed onderhouden woning.

Woonomgeving

Kattenbroek is een rustige en kindvriendelijke wijk, ideaal gelegen op slechts enkele minuten van de Rondweg Oost en de A1. Het winkelcentrum Emiclaer ligt op slechts 700 meter lopen, en het stadspark Schothorst, met een recreatievijver, biedt volop mogelijkheden voor wandelingen en speelplezier voor kinderen. Via het nabijgelegen treinstation Amersfoort Schothorst ben je snel in Utrecht, Amsterdam, Zwolle, Den Haag en zelfs op Schiphol. Kortom: een woning die alles biedt.

Deze villa biedt alles wat je nodig hebt: ruimte, comfort, privacy en een geweldige locatie. Of je nu op zoek bent naar een plek om te werken, te ontspannen of te genieten van het buitenleven, deze woning heeft het allemaal. Wacht niet te lang en plan snel een bezichtiging om deze prachtige woning zelf te ervaren!

Kaart

Kenmerken

Overdracht

Referentienummer
00090/9182316
Vraagprijs
€ 650.000,- k.k.
Status
Verkocht
Aanvaarding
In overleg
Aangeboden sinds
Woensdag 11 juni 2025
Laatste wijziging
Maandag 25 augustus 2025

Bouw

Type object
Woonhuis, eengezinswoning, geschakelde woning
Soort bouw
Bestaande bouw
Bouwjaar
1995
Type dak
Zadeldak
Isolatievormen
Dakisolatie
Dubbel glas
Muurisolatie
Vloerisolatie

Oppervlaktes en inhoud

Perceeloppervlakte
247 m²
Woonoppervlakte
168 m²
Inhoud
621 m³
Oppervlakte gebouwgebonden buitenruimte
28 m²

Indeling

Aantal bouwlagen
3
Aantal kamers
5 (waarvan 4 slaapkamers)

Locatie

Ligging
Aan rustige weg
In woonwijk

Tuin

Type
Achtertuin
Hoofdtuin
Ja
Staat
Goed onderhouden

Energieverbruik

Energielabel
A

Uitrusting

Warm water
CV-ketel
Badkamervoorzieningen
Douche
Wastafelmeubel
Heeft kabel-tv
Ja
Tuin aanwezig
Ja
Heeft schuur/berging
Ja
Heeft ventilatie
Ja

Brochure(s) en overige bijlagen