Verkocht onder voorbehoud:De Oude Munt 87, 3824 DJ Amersfoort - Foto
Verkocht onder voorbehoud
+35

De Oude Munt 87 3824 DJ Amersfoort € 467.000,- k.k.

  • Eengezinswoning
  • 6 kamers
  • 4 slaapkamers
  • Bouwjaar 1996
  • 139 m² perceeloppervlakte
  • 102 m² gebruiksoppervlakte
  • B Energielabel B

Beschrijving

Verrassend ruime woning met tuin, berging en achterom!

Deze woning in de wijk Nieuwland biedt alles wat je zoekt: ruimte, licht en een fijne ligging in een kindvriendelijke omgeving. Aan het einde van de rustige straat ligt een groene wal met wandelpad, waar je heerlijk kunt wandelen of ontspannen. Direct schuin tegenover de woning vind je bovendien een speeltuintje en speelpleintje, ideaal voor kinderen. Nieuwland is daarnaast een ruim opgezette wijk met volop voorzieningen, zoals een winkelcentrum, basisscholen, sportclubs, speeltuinen en veel groen. Ook Hoogland en het nabijgelegen poldergebied Hoogland West zijn dichtbij, perfect voor natuurliefhebbers en sportieve bewoners. Dankzij de gunstige ligging zijn de snelwegen A1 en A28 eenvoudig bereikbaar.

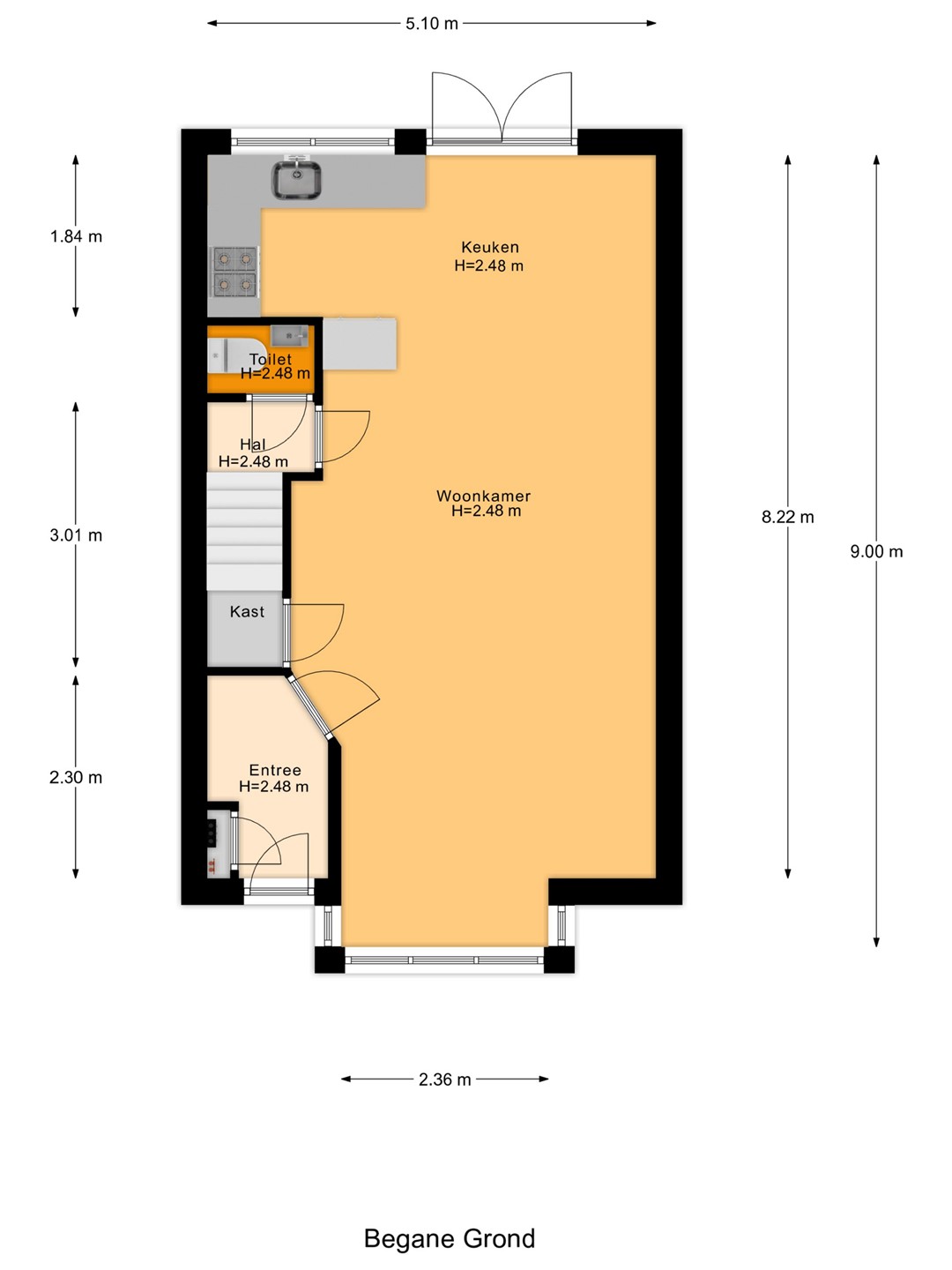
Bij binnenkomst tref je de hal met meterkast, waarna je doorloopt naar de lichte woonkamer met erker en vrij uitzicht. De woonkamer staat in open verbinding met de keuken aan de achterzijde, uitgevoerd in een praktische L-opstelling met extra wandmeubel en een deur naar de tuin. In de tussenhal bevinden zich het toilet en de trapopgang naar boven.

Op de eerste verdieping liggen drie slaapkamers, waarvan één met een inbouwkast, en een badkamer met douche, wastafelmeubel en toilet. De tweede verdieping verrast met nog eens twee kamers, beide voorzien van een dakkapel. Eén van de kamers heeft een doorloop naar de andere, waardoor deze ruimtes ideaal zijn in te richten als bijvoorbeeld een thuiswerkplek, hobbykamer of extra speelkamer voor de kinderen . Op de overloop vind je bovendien een bergkast met cv-opstelling en de aansluiting voor de wasmachine.

De achtertuin is verzorgd aangelegd met bestrating en borders en beschikt over een praktische berging en een achterom. Ook de voortuin biedt een fijne plek om buiten te zitten, met zicht op het speelpleintje en de speeltuin schuin tegenover.

Kortom: dit is een heerlijk ruime gezinswoning met maar liefst vijf (slaap)kamers, een zonnige tuin en een speeltuin direct in het zicht. Hier kun je zo intrekken en genieten!

Kaart

Kenmerken

Overdracht

Vraagprijs
€ 467.000,- k.k.
Status
Verkocht onder voorbehoud
Aanvaarding
In overleg
Aangeboden sinds
Woensdag 8 oktober 2025
Laatste wijziging
Woensdag 29 oktober 2025

Bouw

Type object
Eengezinswoning, woonhuis, tussenwoning
Soort bouw
Bestaande bouw
Bouwjaar
1996
Dakbedekking
Dakpannen
Type dak
Zadeldak
Isolatievormen
Dakisolatie
Dubbel glas
Muurisolatie
Vloerisolatie

Oppervlaktes en inhoud

Perceeloppervlakte
139 m²
Woonoppervlakte
102 m²
Inhoud
342 m³
Oppervlakte externe bergruimte
6 m²

Indeling

Aantal bouwlagen
3
Aantal kamers
6 (waarvan 4 slaapkamers)

Locatie

Ligging
Aan rustige weg
In woonwijk
Vrij uitzicht

Tuin

Type
Achtertuin
Hoofdtuin
Ja
Heeft een achterom
Ja
Staat
Goed onderhouden
Tuin 2 - Type
Achtertuin
Tuin 2 - Staat
Goed onderhouden
Tuin 3 - Type
Voortuin
Tuin 3 - Staat
Goed onderhouden

Energieverbruik

Energielabel
B

CV ketel

CV ketel
Bosch
Warmtebron
Gas
Bouwjaar
2008
Combiketel
Ja
Eigendom
Eigendom

Uitrusting

Warm water
CV-ketel
Verwarmingssysteem
Centrale verwarming
Badkamervoorzieningen
Douche
Toilet
Wastafelmeubel
Heeft kabel-tv
Ja
Glasvezelaansluiting aanwezig
Ja
Tuin aanwezig
Ja
Heeft schuur/berging
Ja
Heeft ventilatie
Ja

Kadastrale gegevens

Kadastrale aanduiding
Amersfoort O 4609
Perceeloppervlakte
139 m²
Omvang
Geheel perceel
Eigendomsituatie
Eigen grond

Brochure(s) en overige bijlagen

brochure Download