Drenth Makelaars
Drenth Makelaars
Verkocht:Celsiusstraat 39, 3817 XE Amersfoort - Foto
Verkocht
+44

Celsiusstraat 39 3817 XE Amersfoort

  • Woonhuis
  • 6 kamers
  • 5 slaapkamers
  • Bouwjaar 1932
  • 132 m² perceeloppervlakte
  • 121 m² gebruiksoppervlakte
  • A Energielabel A

Beschrijving

Karakteristieke jaren ’30 woning met vijf slaapkamers in het populaire Leusderkwartier

Op een steenworp afstand van het historische centrum van Amersfoort, in de geliefde wijk het Leusderkwartier, staat deze sfeervolle jaren ’30 tussenwoning.

Een huis met karakter, authentieke details én hedendaags comfort – een ideale plek voor gezinnen die op zoek zijn naar ruimte, stijl en een uitstekende ligging.

Veel leefruimte en authentieke sfeer

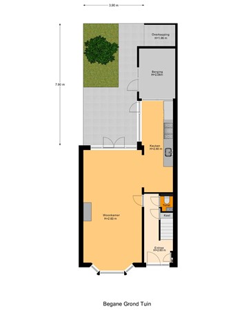
Zodra u deze woning binnenstapt, ervaart u direct de warme uitstraling die zo kenmerkend is voor huizen uit de jaren dertig. Denk aan de mooie erker aan de voorzijde, de originele granitovloer in de hal en de gezellige kachel in de woonkamer. De woonkamer is een fijne leefruimte met veel lichtinval dankzij de grote ramen en de openslaande deuren naar de tuin.

De keuken bevindt zich in de uitbouw en is praktisch ingericht in een wandopstelling. Vanuit hier heeft u eveneens toegang tot de tuin.

Met maar liefst vijf volwaardige slaapkamers – drie op de eerste verdieping en twee op de tweede verdieping – biedt deze woning volop ruimte voor een (groot) gezin, een thuiswerkplek of hobbykamer. Beide zolderslaapkamers zijn voorzien van een dakkapel, wat zorgt voor extra licht en comfort. Daarnaast is er nog een ruime vliering voor extra bergruimte.

De badkamer op de eerste verdieping beschikt over een ligbad, toilet en wastafel.

Zonnige tuin met veel privacy

De achtertuin ligt op het westen en is bereikbaar via zowel de openslaande deuren in de woonkamer als via de keuken. Door de open ligging aan de achterzijde geniet u hier volop van de middag- en avondzon én van uw privacy. De tuin is onderhoudsvriendelijk aangelegd en beschikt over een achterom en een ruime stenen berging, ideaal voor het stallen van fietsen en tuinspullen.

Op de eerste verdieping bevindt zich nog een balkon en dakterras met een onderhoudsvriendelijke bloementuin.

Ligging en voorzieningen

De ligging van de woning is ronduit ideaal: op loopafstand van het bruisende centrum van Amersfoort én met de natuur van het bosrijke buitengebied dichtbij. Voor uw dagelijkse boodschappen kunt u terecht bij de winkels aan de Leusderweg. In de directe omgeving bevinden zich diverse scholen, kinderopvang en sportverenigingen. De wijk is kindvriendelijk en populair bij jonge gezinnen.

Met de fiets bent u in circa tien minuten in de binnenstad of op het NS-station Amersfoort Centraal. Daarnaast bent u met de auto binnen enkele minuten op de A28, waardoor steden als Utrecht en Zwolle uitstekend bereikbaar zijn.

Bijzonderheden:

-CV-ketel vervangen in 2025
-Schilderwerk buiten gedeeltelijk gedaan in 2025
-In 2020 in samenwerking met de buren een nieuwe schutting geplaatst met balken voor bijv. een schommel of hangmat
-In 2020 zijn de dakpannen vervangen
-Voorzien van maar liefst 18 zonnepanelen (lage energiekosten!)
-In 2019 voorzien van een slim verwarmingssysteem (Tado)
-Muurisolatie aangebracht in 2018
-Zolder geïsoleerd aan de binnenzijde
-Keuken vernieuwd in 2016
-Vloerafwerking begane grond vernieuwd in 2016

Kortom: een instapklare, sfeervolle en uitstekend onderhouden woning met veel ruimte, gelegen op een toplocatie in Amersfoort. Maak snel een afspraak voor een bezichtiging en ervaar het zelf!

Kaart

Kenmerken

Overdracht

Referentienummer
00090/8436793
Vraagprijs
€ 765.000,- k.k.
Status
Verkocht
Aanvaarding
In overleg
Aangeboden sinds
Woensdag 16 oktober 2024
Laatste wijziging
Maandag 7 juli 2025

Bouw

Type object
Woonhuis, eengezinswoning, tussenwoning
Soort bouw
Bestaande bouw
Bouwjaar
1932
Type dak
Zadeldak
Keurmerken
Bouwkundige keuring
Isolatievormen
Dakisolatie
Dubbel glas
Muurisolatie

Oppervlaktes en inhoud

Perceeloppervlakte
132 m²
Woonoppervlakte
121 m²
Inhoud
442 m³
Oppervlakte gebouwgebonden buitenruimte
12 m²

Indeling

Aantal bouwlagen
4
Aantal kamers
6 (waarvan 5 slaapkamers)

Locatie

Ligging
Aan rustige weg
In woonwijk

Tuin

Type
Achtertuin
Hoofdtuin
Ja
Heeft een achterom
Ja
Staat
Goed onderhouden

Energieverbruik

Energielabel
A

Uitrusting

Warm water
CV-ketel
Badkamervoorzieningen
Ligbad
Toilet
Wastafel
Heeft een balkon
Ja
Heeft kabel-tv
Ja
Heeft een rookkanaal
Ja
Tuin aanwezig
Ja
Heeft schuur/berging
Ja

Brochure(s) en overige bijlagen