Verkocht onder voorbehoud:Bombardonstraat 8, 3822 CG Amersfoort - Foto
Verkocht onder voorbehoud
+36

Bombardonstraat 8 3822 CG Amersfoort € 485.000,- k.k.

  • Woonhuis
  • 6 kamers
  • 4 slaapkamers
  • Bouwjaar 1989
  • 125 m² perceeloppervlakte
  • 107 m² gebruiksoppervlakte
  • A Energielabel A

Beschrijving

Royale gezinswoning met werkkamer, vier slaapkamers én zonnepanelen in groene en rustige wijk Zielhorst

Bent u op zoek naar een ruime, praktisch ingedeelde woning met volop privacy, een fijne werkkamer, vier slaapkamers en een zonnige tuin? Dan is Bombardonstraat 8 in Amersfoort precies wat u zoekt! Deze goed onderhouden tussenwoning ligt aan een rustige ventweg in de kindvriendelijke en groene wijk Zielhorst, op steenworp afstand van scholen, winkels, openbaar vervoer en uitvalswegen. Ideaal voor gezinnen én thuiswerkers.

Licht, ruimte en comfort

Bij binnenkomst valt direct op hoe netjes en licht de woning is afgewerkt. De hal biedt toegang tot een ruime toiletruimte, de trap naar boven en de royale, tuingerichte woonkamer. Dankzij de grote raampartijen geniet u hier van veel daglicht en een prettige verbinding met de achtertuin.

Aan de voorzijde van de woning ligt de open keuken. Deze biedt volop werk- en opbergruimte, is uitgerust met diverse inbouwapparatuur en heeft een heerlijk vrij uitzicht op het water en het groen aan de overkant. Koken wordt hier een ontspannen bezigheid!

Vier slaapkamers en een fijne werkkamer

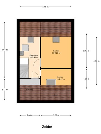
Op de eerste verdieping bevinden zich drie volwaardige slaapkamers en een ruime, lichte badkamer met inloopdouche, wastafel en een tweede toilet. De tweede verdieping biedt nog meer ruimte: een vierde slaapkamer én een aparte werkkamer, ideaal voor thuiswerken of als hobbyruimte. Ook is hier op de overloop plaats voor de wasmachine, droger, cv-ketel en bergruimte onder de vliering. Een dakraam zorgt voor extra lichtinval op deze verdieping.

Zonnige tuin en veel privacy

De achtertuin ligt op het zuidoosten en is onderhoudsvriendelijk aangelegd met bestrating, een groene border, een schutting en een coniferenhaag. Hierdoor geniet u van volop privacy. Achterin de tuin staat een stenen berging, perfect voor fietsen en tuingereedschap, met daarnaast een handige achterom.

Zonnepanelen en gunstige ligging

De woning is voorzien van zonnepanelen, wat bijdraagt aan lagere energielasten en een duurzamer wooncomfort. De ligging is uitstekend: in een rustige buurt met veel groen, op korte afstand van winkelcentrum Emiclaer, NS-station Schothorst, scholen, kinderopvang en sportvoorzieningen. Binnen tien minuten fietsen staat u in de historische binnenstad van Amersfoort. Ook natuurliefhebbers kunnen hun hart ophalen in het nabijgelegen Schothorsterbos.

Kortom: een verrassend ruime en complete gezinswoning met fijne extra’s zoals een werkkamer, zonnepanelen en een zonnige tuin, op een toplocatie in Amersfoort. Een bezichtiging meer dan waard!

Kaart

Kenmerken

Overdracht

Referentienummer
00090/9007334
Vraagprijs
€ 485.000,- k.k.
Status
Verkocht onder voorbehoud
Aanvaarding
In overleg
Aangeboden sinds
Dinsdag 15 april 2025
Laatste wijziging
Vrijdag 28 november 2025

Bouw

Type object
Woonhuis, eengezinswoning, tussenwoning
Soort bouw
Bestaande bouw
Bouwjaar
1989
Type dak
Zadeldak
Isolatievormen
Dakisolatie
Dubbel glas
Muurisolatie
Vloerisolatie

Oppervlaktes en inhoud

Perceeloppervlakte
125 m²
Woonoppervlakte
107 m²
Inhoud
364 m³

Indeling

Aantal bouwlagen
4
Aantal kamers
6 (waarvan 4 slaapkamers)

Locatie

Ligging
In woonwijk
Vrij uitzicht

Tuin

Type
Achtertuin
Hoofdtuin
Ja
Heeft een achterom
Ja
Staat
Normaal

Energieverbruik

Energielabel
A

Uitrusting

Warm water
CV-ketel
Badkamervoorzieningen
Douche
Toilet
Wastafel
Heeft kabel-tv
Ja
Tuin aanwezig
Ja
Heeft schuur/berging
Ja
Heeft een dakraam
Ja
Heeft zonwering
Ja

Brochure(s) en overige bijlagen