Drenth Makelaars
Drenth Makelaars
Verkocht onder voorbehoud:Barchman Wuytierslaan 148, 3818 LM Amersfoort - Foto
Verkocht onder voorbehoud
+58

Barchman Wuytierslaan 148 3818 LM Amersfoort € 875.000,- k.k.

  • Woonhuis
  • 5 kamers
  • 4 slaapkamers
  • Bouwjaar 1921
  • 475 m² perceeloppervlakte
  • 134 m² gebruiksoppervlakte
  • D Energielabel D

Beschrijving

Karakter, ruimte en een topligging in het Bergkwartier

Aan een van de bekendste lanen van Amersfoort, midden in het geliefde en lommerrijke Bergkwartier, staat deze charmante helft van een dubbel herenhuis uit de jaren ’20 met vrijstaande stenen garage en eigen oprit. Een woning die direct de sfeer van de jaren twintig uitstraalt en zich kenmerkt door licht, ruimte en een prettige, functionele indeling.

Woonomgeving

Een heerlijk huis met een authentieke sfeer in de Amersfoortse villawijk nabij het Centraal Station. Wanneer je hier woont, ben je overal dichtbij. Amersfoort is het kadastrale middelpunt van Nederland. Vanuit hier ben je verbonden met de rest van Nederland en de rest van de wereld. Binnen 40 minuten stopt de trein op Schiphol, Zuidas of Amsterdam Centraal ( 35 minuten) en in minder dan een kwartier sta je midden in Utrecht. Met de auto bereik je binnen 1 minuut de A28 en kan je alle kanten op. Met de fiets ben je binnen een paar minuten midden in de natuur van de Utrechtse Heuvelrug, Soestduinen of Dierenpark Amersfoort. Op loopafstand van de historische binnenstad, de fijne winkelstraat de Leusderweg, diverse scholen, theaters, bioscopen, talrijke cafés en restaurants. De woning ligt op steenworp afstand van het prachtige bos- en wandelgebied Klein Zwitserland en bevindt zich op fietsafstand van de groene Utrechtse heuvelrug met een variëteit aan fietspaden.

Indeling

Begane grond

Je komt binnen via het tochtportaal met meterkast, waarna de hal direct de jaren ’20 sfeer laat voelen door de trapopgang en karakteristieke tegellambrisering. Vanuit de hal zijn het toilet en de kelder bereikbaar. De kelder (ca. 1,90 m hoog) biedt praktische bergruimte en herbergt de cv-opstelling.

De dichte keuken is opgesteld in dubbele opstelling en vormt een fijne, lichte werkruimte met direct contact met de leefruimtes.

De voormalige kamer-en-suite is samen met de aangebouwde serre uitgegroeid tot een royale leefruimte. Grote raampartijen zorgen hier voor veel daglicht en er is mooi zicht op zowel de tuin als de karakteristieke laan. Een prettige plek waar wonen en eten moeiteloos samenkomen.

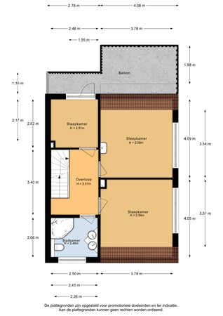
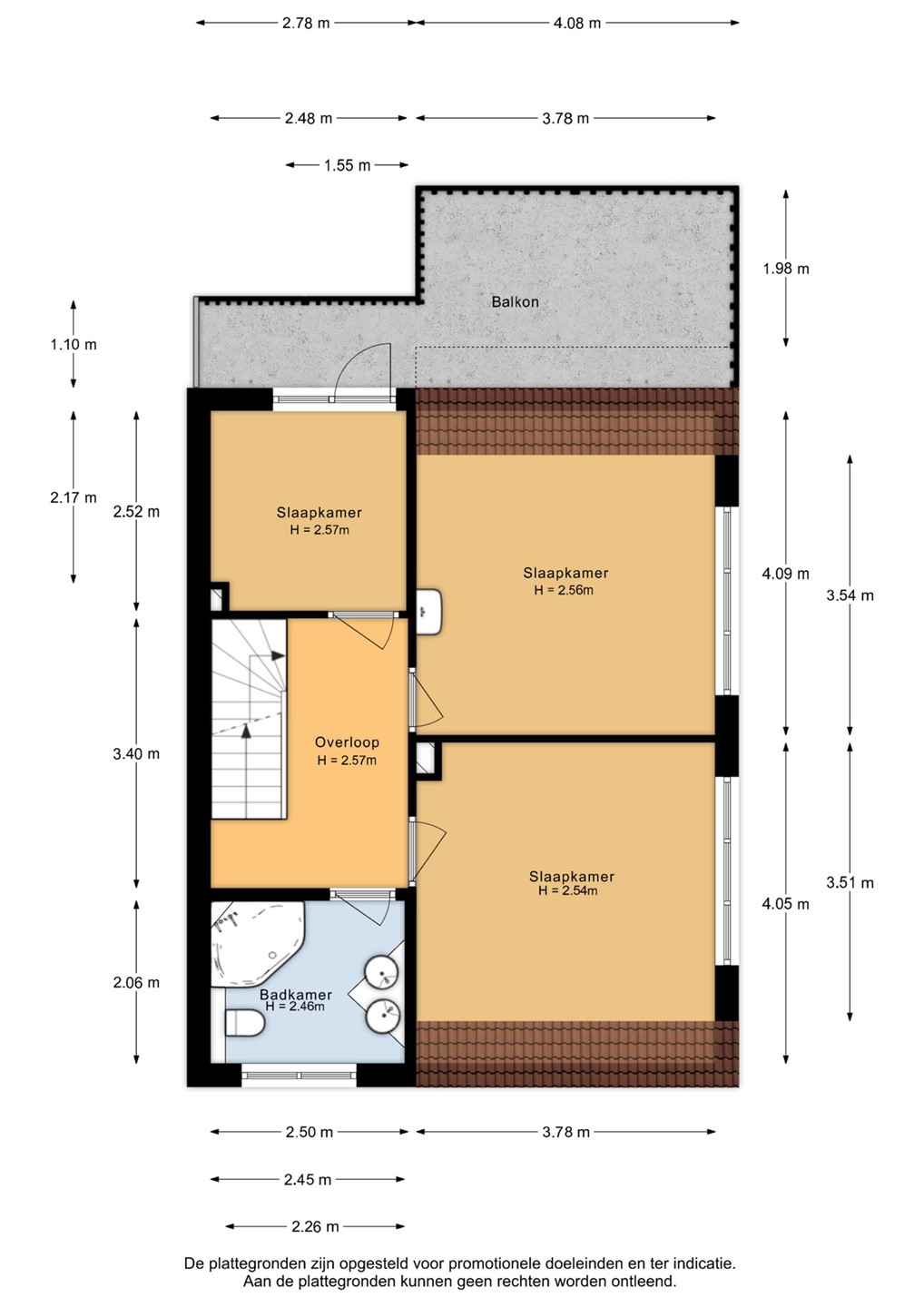
Eerste verdieping

De overloop geeft toegang tot drie goed bemeten slaapkamers. De slaapkamer aan de voorzijde kijkt uit over de laan, terwijl de twee slaapkamers aan de achterzijde rust en groen bieden. Eén van deze kamers beschikt over een balkon, een fijne plek om even buiten te zitten.
De badkamer is compleet uitgevoerd met wastafel, toilet en een douche-/badcombinatie.

Tweede verdieping

Een verdieping met opvallend veel ruimte door de topgevel. Hier bevindt zich een vierde kamer, uitstekend geschikt als werkruimte of logeerkamer.

Buitenruimte

De tuin biedt volop mogelijkheden voor meerdere terrassen en is voorzien van een vrijstaande stenen garage/berging. Daarnaast is er een eigen oprit met plaats voor meerdere auto’s – comfortabel en zeldzaam op deze locatie.

Bijzonderheden

In de koopakte zullen een niet-zelfbewoningsclausule en een ouderdomsclausule worden opgenomen

Kaart

Kenmerken

Overdracht

Referentienummer
00090/9859402
Vraagprijs
€ 875.000,- k.k.
Status
Verkocht onder voorbehoud
Aanvaarding
In overleg
Aangeboden sinds
Maandag 19 januari 2026
Laatste wijziging
Maandag 23 maart 2026

Bouw

Type object
Woonhuis, eengezinswoning, twee onder een kap woning
Soort bouw
Bestaande bouw
Bouwjaar
1921
Type dak
Samengesteld
Keurmerken
Bouwkundige keuring

Oppervlaktes en inhoud

Perceeloppervlakte
475 m²
Woonoppervlakte
134 m²
Inhoud
530 m³
Oppervlakte gebouwgebonden buitenruimte
11 m²

Indeling

Aantal bouwlagen
3 (en 1 kelder)
Aantal kamers
5 (waarvan 4 slaapkamers)

Locatie

Ligging
In woonwijk
Vrij uitzicht

Tuin

Type
Achtertuin
Hoofdtuin
Ja
Heeft een achterom
Ja
Staat
Normaal

Energieverbruik

Energielabel
D

Uitrusting

Warm water
CV-ketel
Badkamervoorzieningen
Toilet
Wastafel
Zitbad
Parkeergelegenheid
Vrijstaande stenen garage
Heeft een balkon
Ja
Heeft kabel-tv
Ja
Tuin aanwezig
Ja
Heeft een garage
Ja

Brochure(s) en overige bijlagen