Drenth Makelaars
Drenth Makelaars
Verkocht:Ariaweg 133, 3816 HJ Amersfoort - Foto
Verkocht
+33

Ariaweg 133 3816 HJ Amersfoort

  • Appartement
  • 3 kamers
  • 2 slaapkamers
  • Bouwjaar 2004
  • 65 m² gebruiksoppervlakte
  • A Energielabel A

Beschrijving

Centraal gelegen en instapklaar 3-kamerappartement met lift en balkon

Ben je op zoek naar een modern afgewerkt appartement met een praktische indeling, gelegen op een ideale plek in Amersfoort? Dit 3-kamerappartement op de tweede verdieping met eigen berging voldoet aan al je wensen.

De woning ligt in een kindvriendelijke en groene woonomgeving. Op korte afstand bevinden zich de winkelcentra aan het Euterpeplein en het Operaplein, waar je terecht kunt voor de dagelijkse boodschappen, speciaalzaken en horeca. Voor sport en ontspanning ligt het moderne zwembad en sportcomplex De Amerena om de hoek.
Scholen en kinderopvang zijn in de nabije omgeving ruim aanwezig, waardoor dit een ideale plek is voor gezinnen. Ook de bereikbaarheid is uitstekend: met de fiets sta je in een paar minuten in de binnenstad van Amersfoort of op station Schothorst, en met de auto zijn de uitvalswegen richting de A1 en A28 vlot bereikbaar.

Begane grond
Gezamenlijke entree met bellentableau, brievenbussen, centrale hal, trappenhuis en lift. Vanuit hier is ook de eigen berging bereikbaar.
Tweede verdieping

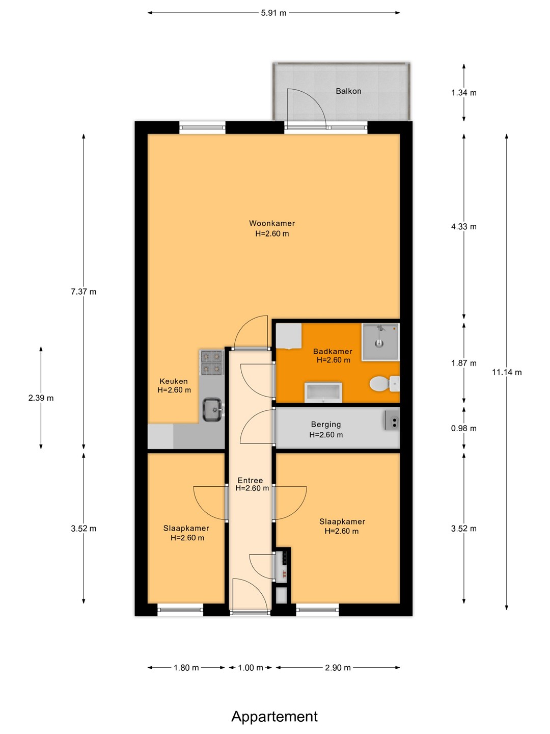
Ruime entree/hal met toegang tot de L-vormige woonkamer met open keuken. De lichte woonkamer – over de volle breedte van het appartement – biedt volop ruimte voor een royale zithoek en eettafel en geeft toegang tot het balkon.

De open keuken in hoekopstelling is voorzien van een composiet werkblad en diverse inbouwapparatuur: oven, inductiekookplaat, vaatwasser en koel-/vriescombinatie.
Verder beschikt het appartement over twee slaapkamers, een inpandige berging met cv-ketel (2021) en extra bergruimte, en een ruime badkamer met douchecabine, toilet, wastafelmeubel en aansluitingen voor wasapparatuur. Vrijwel het gehele appartement is voorzien van een laminaatvloer.

Pluspunten op een rij

• Gezonde en actieve VvE met relatief lage servicekosten
• Aanwezigheid van een lift
• Goed ingedeeld met 2 slaapkamers en ruime woonkamer
• Nette en moderne afwerking
• Voorzien van kunststof kozijnen
• Voorzien van zonnepanelen en energielabel A
• Uitstekende ligging ten opzichte van winkels, binnenstad en uitvalswegen

Kortom: een instapklaar appartement op een toplocatie waar je zo in kunt trekken!

Kaart

Kenmerken

Overdracht

Vraagprijs
€ 325.000,- k.k.
Servicekosten
€ 148,-
Status
Verkocht
Aanvaarding
In overleg
Aangeboden sinds
Maandag 15 september 2025
Laatste wijziging
Maandag 20 oktober 2025

Bouw

Type object
Appartement, galerijflat
Woonlaag
2e woonlaag
Soort bouw
Bestaande bouw
Bouwjaar
2004
Type dak
Platdak
Isolatievormen
Dakisolatie
Dubbel glas
Muurisolatie
Vloerisolatie

Oppervlaktes en inhoud

Woonoppervlakte
65 m²
Inhoud
208 m³
Oppervlakte externe bergruimte
4 m²
Oppervlakte gebouwgebonden buitenruimte
4 m²

Indeling

Aantal bouwlagen
1
Aantal kamers
3 (waarvan 2 slaapkamers)

Locatie

Ligging
Aan rustige weg
In woonwijk

Energieverbruik

Energielabel
A

CV ketel

CV ketel
Intergas
Warmtebron
Gas
Bouwjaar
2021
Combiketel
Ja
Eigendom
Eigendom

Uitrusting

Warm water
CV-ketel
Verwarmingssysteem
Centrale verwarming
Badkamervoorzieningen
Douche
Toilet
Wastafel
Heeft een balkon
Ja
Heeft kabel-tv
Ja
Heeft een lift
Ja
Glasvezelaansluiting aanwezig
Ja
Heeft schuur/berging
Ja
Heeft ventilatie
Ja

Vereniging van Eigenaren

Ingeschreven bij de KvK
Ja
Jaarlijkse vergadering
Ja
Periodieke bijdrage
Ja
Reservefonds
Ja
Onderhoudsverwachting
Ja
Opstal verzekering
Ja

Kadastrale gegevens

Kadastrale aanduiding
Amersfoort A 6682
Omvang
Appartementsrecht of complex
Eigendomsituatie
Eigen grond
Indexnummer
10

Brochure(s) en overige bijlagen

brochure Download